logo mondocasa
  • in Affitto
  • Locali: 1
  • Bagni: 2
  • Mq: 2.024

Descrizione

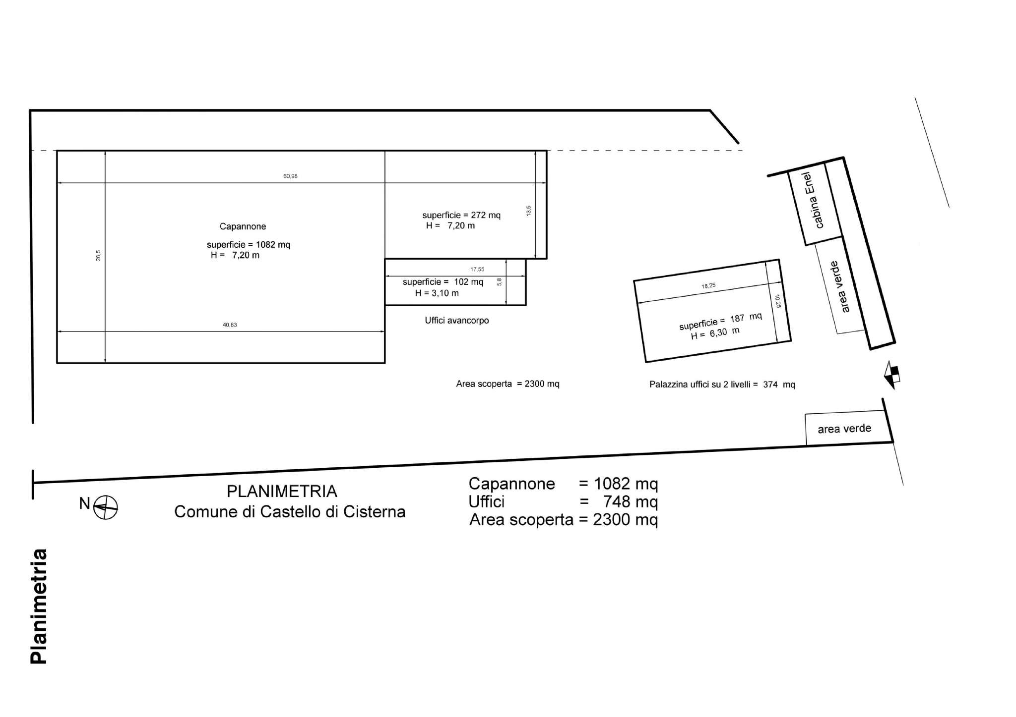
Castello di Cisterna , in zona ben collegata , proponiamo in affitto , Capannone avente destinazione industriale , ottime condizioni. Per maggiori informazioni in merito contattare il seguente recapito telefonico : 081 823 13 45.

Metrature : capannone mq 1082 uffici mq 748 area esterna scoperta - piazzale mq 2300 palazzina uffici disposta su n° 2 livelli mq 374 L' immobile proposto si presta per qualsiasi tipo di attività di tipo , commerciale , industriale , artigianale , ecc. - Classe: F - IPE: 123,40 kWh/mc annum.

Dettagli

  • ID Annuncio: 36166671
  • Prezzo: Ris.
  • Superficie: 2.024 m²
  • Pubblicazione: 21/09/2017
  • Tipologia:
  • Locali: 1
  • Bagni: 2
  • Contratto:

Informazioni aggiuntive

  • Arredamento: Arredato
  • Riscaldamento: Non Specificato
  • Cucina: Angolo cottura
  • Condizioni: Ottimo Stato

Efficienza Energetica

  • Classe Energetica: NON SOGG. CERT.
  • I.P.E.: Non Specificato

Indirizzo Caricamento...