logo mondocasa
  • in Vendita
  • Mq.: 1.180

Descrizione

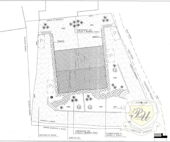
OCCASIONE! Proponiamo terreno edificabile di circa 1180 mq. Il lotto dalle generose metrature è indicato per la realizzazione di una unica casa singola come da progetto di massima allegato nelle foto, cubatura disponibile 1100 metri cubi circa. La nuova costruzione sarà realizzata con elevati standard qualitativi di ultima generazione e finiture eccellenti offrendo i maggiori confort, quali riscaldamento a pavimento pannelli fotovoltaici e predisposizione per aria condizionata.

Con un'esperienza di oltre trent'anni, l'immobiliare Principe Umberto opera con professionalità nel campo dell'intermediazione di immobili e aziende fornendo servizi mirati e consulenze personalizzate. Nell'acquisto, nella vendita, nell'affitto e nella progettazione, trattiamo con la stessa cura alloggi di piccole e grandi dimensioni. L'agenzia si impegna per offrire ai propri clienti i più elevati livelli di competenza e trasparenza. Per informazioni e visite contattare l'agenzia Immobiliare Principe Umberto Via Principe Umberto 54/b Este (PD) oppure contattare il numero 0429/50199 - 335/1017033 indirizzo e-mail info@immobiliareprincipeumberto.it Per altri annunci visita il nostro sito www.immobiliareprincipeumberto.com - Rif. T107 --- annuncio pubblicato con GESTIONALEIMMOBILIARE.it.

Dettagli

  • ID Annuncio: 41665985
  • Prezzo: Ris.
  • Superficie: 1.180 m²
  • Pubblicazione: 22/09/2025
  • Tipologia:
  • Contratto:

Informazioni addizionali

  • Arredamento: Non Specificato
  • Riscaldamento: Non Specificato
  • Cucina: Non Specificata
  • Condizioni: Non Specificate

Efficienza Energetica

  • Classe Energetica: NON SOGG. CERT.
  • I.P.E.: 0.00 kWh/m2anno

Indirizzo Caricamento...