logo mondocasa

Terreno

€ 170.000

  • in Vendita
  • Mq: 4.300

Descrizione

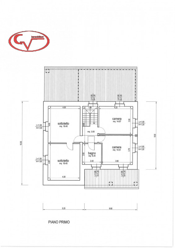
in bellissima posizione panoramica nelle vicinanze dei campi da polo, con progetto già approvato per la costruzione di un nuovo edificio in pietra a vista per civile abitazione composto da: piano interrato da cantine per 140 mq. it.

, piano terra da cucina, pranzo, soggiorno, bagno e camera con guardaroba per ulteriori 140 mq. più loggia, al primo piano due camere bagno più sottotetto di 45 mq. Possibilità di costruire annesso agricolo e piscina, ampio terreno agricolo che circonda i quattro lati. Possibilità di acquisto di ulteriore terreno agricolo adiacente di mq 21. 000 Giudizio dell'esperto "Buono" toscana#arezzo#bucine --- annuncio pubblicato con GESTIONALEIMMOBILIARE.

Dettagli

  • ID Annuncio: 41685870
  • Prezzo: € 170.000
  • Superficie: 4.300 m²
  • Pubblicazione: 22/09/2025
  • Tipologia:
  • Contratto:

Informazioni aggiuntive

  • Arredamento: Non Specificato
  • Riscaldamento: Non Specificato
  • Cucina: Non Specificata
  • Condizioni: Non Specificate

Efficienza Energetica

  • Classe Energetica: Non Comunicata
  • I.P.E.: 0.00 kWh/m2anno

Indirizzo Caricamento...