logo mondocasa

Stabile / Palazzo

€ 220.000

  • in Vendita
  • Bagni: 4
  • Mq.: 300

Descrizione

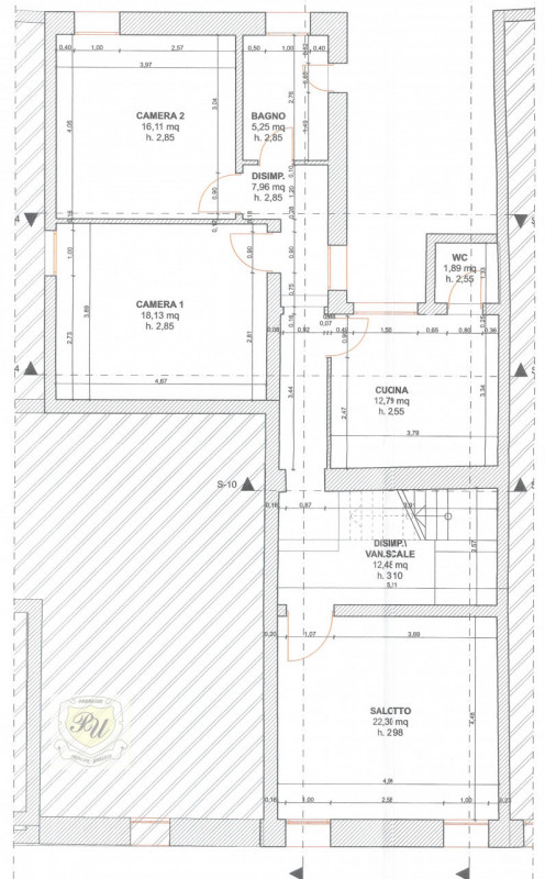
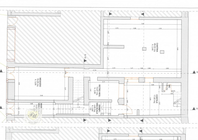
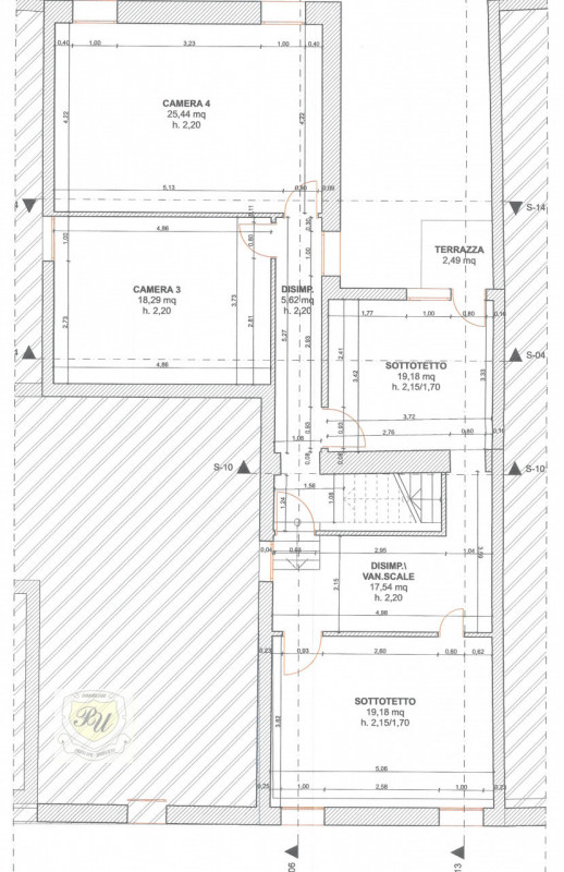
Nel cuore del centro storico di Este proponiamo in vendita palazzetto storico terracielo da ristrutturare di circa 300 mq sviluppato su tre livelli. L'immobile, caratterizzato dagli ampi spazi tipici di un tempo, gode di ingresso indipendente e piccolo scoperto privato.

L'abitazione si sviluppa su livelli sfalsati e si sviluppa al primo piano con salone, cucina, due camere da letto, bagno; al piano secondo con salone, cucina, tre camere, bagno, disimpegni vari e terrazza mentre al piano terra troviamo spazi dedicati ad attività commerciale. L'immobile è davvero una pietra miliare di Este e presenta un'occasione imperdibile per la ristrutturazione, gli ampi spazi danno infatti la possibilità di suddividere l'immobile in più unità abitative. Tra i servizi erogati dall'agenzia immobiliare Principe Umberto, ci sono anche le valutazioni, stime, consulenze pratiche di accesso al mutuo e grazie alla collaborazione stretta con studi notarili, geometri e architetti, riusciamo a fornire un servizio completo nell'aspetto pratico e burocratico. ATTENZIONE: si comunica che l'indirizzo riportato nell'annuncio non corrisponde all'esatta collocazione dell'immobile, per informazioni sulla sua precisa localizzazione e per le planimetrie si prega di contattare l'agenzia. Immobiliare Principe Casa - Piazza Maggiore, 20 - Este (PD) oppure contattare il numero 0429/602835 - 335/1017033 indirizzo e-mail info@immobiliareprincipeumberto.it Per altri annunci visita il nostro sito www.principecasa.com Rif. PE43 --- annuncio pubblicato con GESTIONALEIMMOBILIARE.it.

Dettagli

  • ID Annuncio: 43687244
  • Prezzo: € 220.000
  • Superficie: 300 m²
  • Pubblicazione: 22/09/2025
  • Tipologia:
  • Bagni: 4
  • Contratto:

Informazioni addizionali

  • Arredamento: Non Specificato
  • Riscaldamento: Non Specificato
  • Cucina: Cucina abitabile
  • Condizioni: Da Ristrutturare

Efficienza Energetica

  • Classe Energetica: Non Comunicata
  • I.P.E.: 0.00 kWh/m2anno

Indirizzo Caricamento...