logo mondocasa
Emilia Romagna - Provincia di Ravenna - Russi

Villetta A Schiera

€ 245.000

  • in Vendita
  • Locali: 5
  • Bagni: 2
  • Mq.: 140

Descrizione

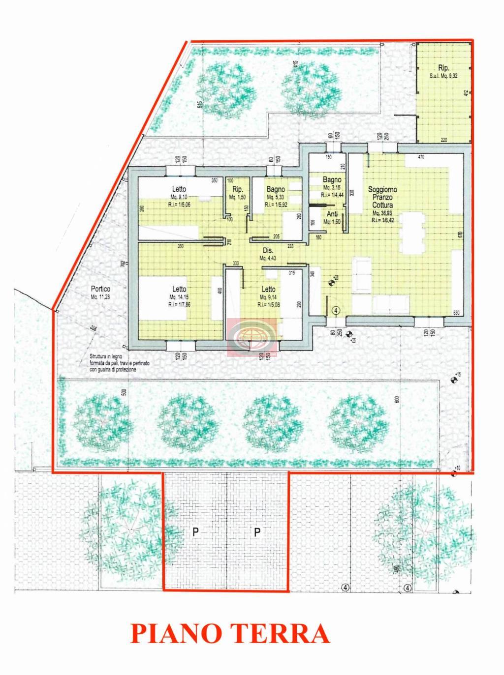
Russi (VSC471): a 1,5 km dal centro del paese, proponiamo villette di prossima costruzione ad alto risparmio energetico. Le villette che verranno realizzate saranno disposte su un'unico piano e saranno composte da ingresso su zona giorno open-space con zona cottura a vista (mq 37), bagno a servizio della zona giorno, disimpegno, tre camere da letto, ripostiglio, bagno a servizio della zona notte, vano esterno (mq 9,5) ad uso ripostiglio.

Completano la proprietà due posti auto privati ed il giardino privato di c.a 180 mq. Le villette avranno il riscaldamento e raffrescamento a ventil con pompa di calore, la produzione di acqua calda sanitaria avverrà mediante boiler a pompa di calore con integrazione di pannello solare termico, impianto fotovoltaico per ogni alloggio di c.a 3/4 Kw. NO GAS..

Dettagli

  • ID Annuncio: 46337664
  • Prezzo: € 245.000
  • Superficie: 140 m²
  • Pubblicazione: 24/06/2025
  • Tipologia:
  • Locali: 5
  • Bagni: 2
  • Contratto:

Informazioni addizionali

  • Arredamento: Non Specificato
  • Riscaldamento: Non Specificato
  • Cucina: Angolo cottura
  • Condizioni: Nuovo

Efficienza Energetica

  • Classe Energetica: Non Comunicata
  • I.P.E.: 0