logo mondocasa

Capannone

€ 1.350.000

  • in Vendita
  • Locali: 18
  • Mq: 4.200

Descrizione

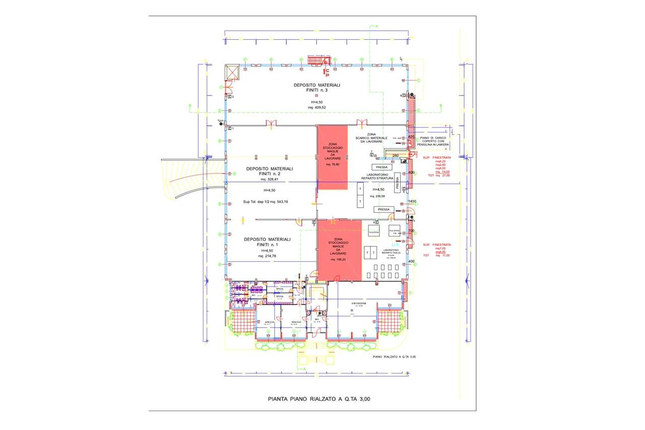
MACERATA – PIEDIRIPA – OPIFICIO INDUSTRIALE MQ. 4. 200 CON PIAZZALE DI CIRCA MQ. 4. 000. IN VENDITA. In Località Piediripa, esattamente in Via Domenico Concordia n° 18, Quattropareti propone in vendita Opificio Industriale, di complessivi Mq.

4. 200, distribuito su due livelli fuori terra oltre a piano seminterrato ed ampio piazzale di circa Mq. 4. 000, con accesso diretto dalla via principale. Il fabbricato è stato edificato nel 1988 ed è stato successivamente ampliato nell'anno 2006. SUDDIVISIONE E SUPERFICI UTILI LORDE DELL'OPIFICIO: - Piano seminterrato, attualmente destinato a magazzini e locali tecnici, Mq. 2. 000 circa; - Piano rialzato, attualmente utilizzato come locali di produzione, Mq. 1. 900 circa; - Piano primo, attualmente destinato ad uffici, Mq. 300 circa oltre a terrazzo di Mq. 32; - Piazzale esterno, completamente pavimentato e recintato di circa Mq. 3. 200. Al fine di poter organizzare un appuntamento costruttivo con il nostro Incaricato, Vi preghiamo volerci richiedere preventivamente tutte le informazioni che riterrete necessarie atte ad ottenere un quadro sufficientemente chiaro dell'immobile. Per maggiori informazioni potete contattare il Numero 393 3310470 oppure scrivere ad info@quattropareti. com. CLASSE ENERGETICA: G.

Dettagli

  • ID Annuncio: 46386070
  • Prezzo: € 1.350.000
  • Superficie: 4.200 m²
  • Pubblicazione: 09/09/2025
  • Tipologia:
  • Locali: 18
  • Contratto:

Informazioni aggiuntive

  • Arredamento: Non Specificato
  • Riscaldamento: Non Specificato
  • Cucina: Non Specificata
  • Condizioni: Non Specificate

Efficienza Energetica

  • Classe Energetica: Classe Energetica
  • I.P.E.: Non Specificato

Indirizzo Caricamento...