logo mondocasa
Emilia Romagna - Provincia di Ravenna - Ravenna

Appartamento

€ 466.000

  • in Vendita
  • Bagni: 2
  • Mq.: 125

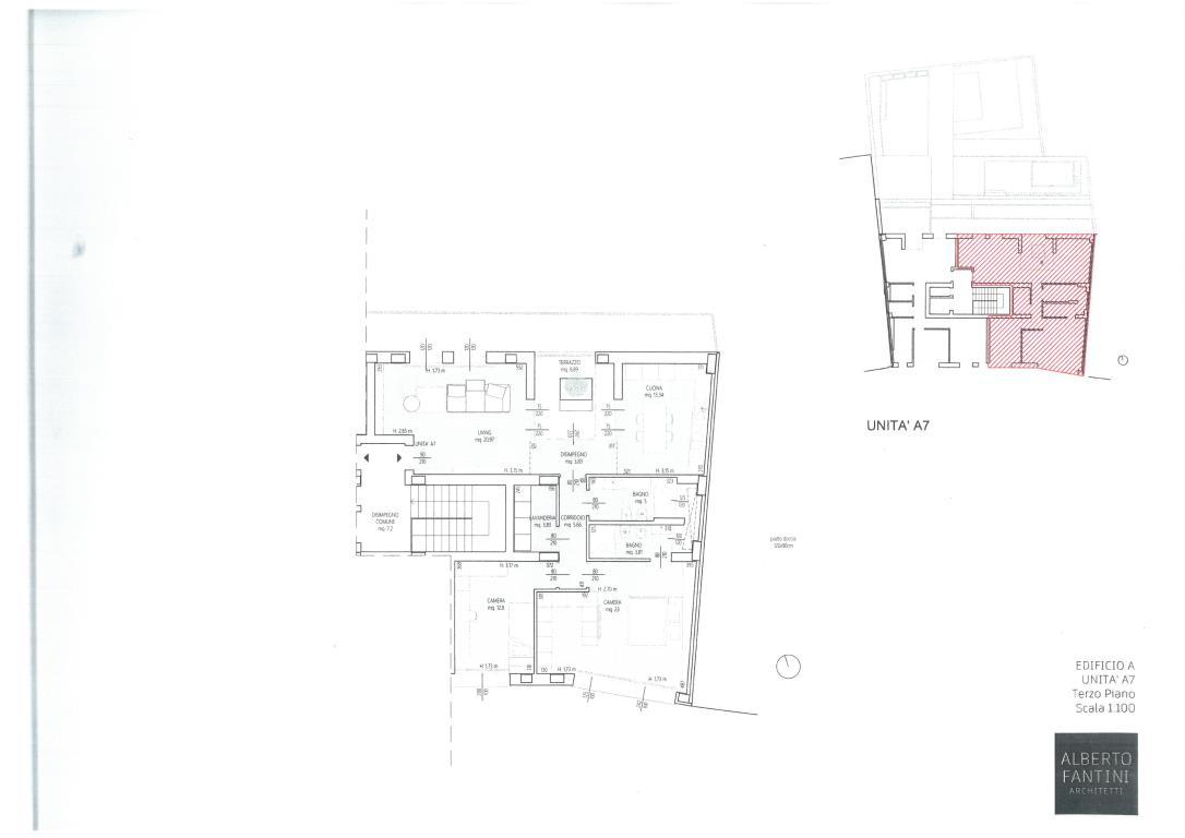
Descrizione

Rif; ADCF1; Ravenna centro storico appartamento in vendita al 3° ed ultimo piano in edificio residenziale di nuova costruzione di alto livello nella progettazione del layout esterno in classe energetica a4 , terrazzo, zona giorno ampia e luminosa, comfort termo-acustico, pannelli fotovoltaici, predisposizione domotica, riscaldamento / raffreddamento a pavimento, ventilazione meccanica controllata e deumidificazione degli ambienti.

Esposizione nord e sud. Si acquista da privato. L'appartamento è stato realizzato con ottime rifiniture di pregio. Comprende un posto auto scoperto all'interno dell'area condominiale e una cantina al piano terra..

Dettagli

  • ID Annuncio: 47152035
  • Prezzo: € 466.000
  • Superficie: 125 m²
  • Pubblicazione: 14/10/2025
  • Tipologia:
  • Bagni: 2
  • Contratto:

Informazioni addizionali

  • Arredamento: Vuoto
  • Riscaldamento: Non Specificato
  • Cucina: Cucina abitabile
  • Condizioni: Nuovo

Efficienza Energetica

  • Classe Energetica:
  • I.P.E.: 0

Indirizzo Caricamento...