logo mondocasa
  • in Vendita
  • Locali: 4
  • Bagno: 1
  • Mq.: 100

Descrizione

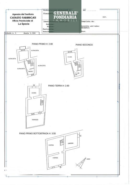
-Rif.5233- nel cuore di Madrignano un piccolo borgo nel Comune di Calice al Cornoviglio, proponiamo caratteristica terratetto indipendente del 1900. Situato precisamente al Castello di Madrignano, la cui distanza è di 5 minuti circa dal centro di Ceparana e di 25 minuti circa da La Spezia.

L'abitazione, di 100 mq circa totali, è disposta su tre livelli: al piano primo l'ingresso accogliente da sulla spaziosa cucina dotata di camino ed il soggiorno con accesso alla terrazza con vista sul borgo e sulla campagna circostante, che offre una fonte infinita di ispirazione e una connessione continua con la natura. Al piano superiore troviamo un disimpegno con la prima camera e il servizio finestrato. All'ultimo piano, seconda camera mansardata con piccola area relax e ripostiglio lungo il sottotetto. La proprietà include anche due cantine finestrate in sasso. Questa soluzione in pietra con spessi muri che conservano il fresco d'estate e il calore d'inverno è una testimonianza della storia e della tradizione del luogo. L'abitazione non dispone di un parcheggio di proprietà, ma vi è la possibilità di parcheggiare nella Piazza a pochissimi metri. L'indirizzo sull'annuncio è approssimativo. Per visionare l'immobile contattateci al 0187939990 3456023380 saremo lieti di fissare un appuntamento. Generale Fondiaria Immobili, Ceparana Via Italia 34/36..

Dettagli

  • ID Annuncio: 47241921
  • Prezzo: € 38.000
  • Superficie: 100 m²
  • Pubblicazione: 26/06/2025
  • Tipologia:
  • Locali: 4
  • Bagni: 1
  • Contratto:

Informazioni addizionali

  • Arredamento: Vuoto
  • Riscaldamento: Non Specificato
  • Cucina: Cucina a vista
  • Condizioni: Da Ristrutturare

Efficienza Energetica

  • Classe Energetica:
  • I.P.E.: 0