logo mondocasa

Rustico

€ 270.000

  • in Vendita
  • Locali: 10
  • Bagno: 1
  • Mq.: 513

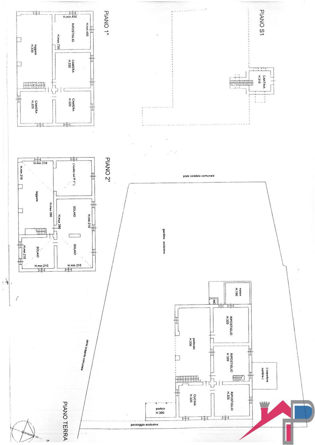
Descrizione

Cisano Bergamasco in prossimità dell'ingresso del paese, al confine con Brivio si propone un ampio cascinale indipendente da ristrutturare, l'immobile disposto su 3 livelli dispone di ampi spazi abitativi da recuperare ideali anche per più nuclei familiari, dotati di caratteristici porticati recuperabili e sfruttabili, oltre ad una caratteristica corte interna ed un'area giardino esclusiva.

L'immobile va restaurato completamente, ottima soluzione per il recupero della pietra e del legno che caratterizzano questo tipo di costruzione, ideale per ampi spazi abitativi ma anche per uffici di rappresentanza o per eventuale trasformazione in spazio commerciale. L'immobile é posto su 3 livelli, al piano terreno troviamo un ampio porticato, una cucina, 3 ampi locali, un servizio; al Primo piano troviamo un ampio loggiato che da accesso a 4 ampi locali; al 2° piano troviamo un altro loggiato e un ampio sottotetto recuperabile viste le altezze generose. L'immobile é libero e subito disponibile. Soluzione ideale per sfruttare gli attuali incentivi sulla ristrutturazione..

Dettagli

  • ID Annuncio: 47302397
  • Prezzo: € 270.000
  • Superficie: 513 m²
  • Pubblicazione: 08/03/2024
  • Tipologia:
  • Locali: 10
  • Bagni: 1
  • Contratto:

Informazioni addizionali

  • Arredamento: Vuoto
  • Riscaldamento: Non Specificato
  • Cucina: Cucina abitabile
  • Condizioni: Da Ristrutturare

Efficienza Energetica

  • Classe Energetica:
  • I.P.E.: 450,8 KWh/m²a

Indirizzo Caricamento...