logo mondocasa
Emilia Romagna - Provincia di Bologna - Budrio

Magazzino

€ 132.000

  • in Vendita
  • Bagni: 2
  • Mq.: 230

Descrizione

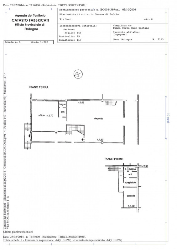
Porzione di fabbricato produttivo, posto al piano terra e primo, ad uso magazzino (catastalmente censito in categoria C/2). L'immobile sito nel Comune di Budrio, a 8 km dalla tangenziale di Bologna, è posizionato all'interno di un complesso misto produttivo e direzionale.

Esternamente ed internamente si presenta in buone condizioni di manutenzione. Si sviluppa al piano terra per circa 200mq con deposito di altezza variabile (da 5,60a 7,60m) ed ufficio con servizi mentre al primo piano è presente un piccolo archivio ed uno spogliatoio. --- annuncio pubblicato con GESTIONALEIMMOBILIARE.it.

Dettagli

  • ID Annuncio: 47409507
  • Prezzo: € 132.000
  • Superficie: 230 m²
  • Pubblicazione: 22/09/2025
  • Tipologia:
  • Bagni: 2
  • Contratto:

Informazioni addizionali

  • Arredamento: Non Specificato
  • Riscaldamento: Non Specificato
  • Cucina: Non Specificata
  • Condizioni: Buono Stato

Efficienza Energetica

  • Classe Energetica: Non Comunicata
  • I.P.E.: 41.22 kWh/m3anno

Indirizzo Caricamento...