logo mondocasa

Capannone

€ 240.000

  • in Vendita
  • Mq.: 348

Descrizione

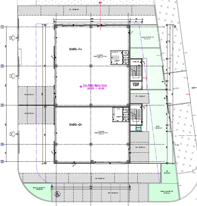
Altavista Bedizzole propone: In pronta consegna, capannone di 340m² e con altezza di 4,10m. Sito al piano primo e inserito in un edificio di sole quattro unità, il capannone ha la predisposizione per vano montacarichi e ascensore. Accettiamo prenotazioni per superfici commerciali, artigianali, laboratori e magazzini; Si valutano richieste specifiche e finiture personalizzate, in pronta consegna al rustico.

--- annuncio pubblicato con GESTIONALEIMMOBILIARE.it.

Dettagli

  • ID Annuncio: 47419502
  • Prezzo: € 240.000
  • Superficie: 348 m²
  • Pubblicazione: 22/09/2025
  • Tipologia:
  • Contratto:

Informazioni addizionali

  • Arredamento: Non Specificato
  • Riscaldamento: Non Specificato
  • Cucina: Non Specificata
  • Condizioni: Nuovo

Efficienza Energetica

  • Classe Energetica: Non Comunicata
  • I.P.E.: 0.00 kWh/m3anno

Indirizzo Caricamento...