logo mondocasa

Indipendente

€ 260.000

  • in Vendita
  • Locali: 3
  • Bagni: 2
  • Mq: 120

Descrizione

House&villa Real Estate propone in vendita casa con giardino vista mare ubicata in centro storico a Noto. Completa la proposta un terreno di 5. 284 mq con annessi due locali di circa 51 mq totali. --- annuncio pubblicato con GESTIONALEIMMOBILIARE. it.

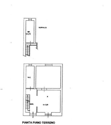
La casa è grande circa 120 mq e si sviluppa su tre livelli: al piano terra troviamo un ingresso, un soggiorno, una camera da letto ed un bagno mentre al primo piano vi è un vano attualmente adibito a cameretta; al piano seminterrato troviamo un' altra camera da letto, un bagno ed una cucina con accesso su un cortile di esclusiva proprietà dal quale è possibile godere di una bellissima vista mare.

Dettagli

  • ID Annuncio: 47420345
  • Prezzo: € 260.000
  • Superficie: 120 m²
  • Pubblicazione: 22/09/2025
  • Tipologia:
  • Locali: 3
  • Bagni: 2
  • Contratto:

Informazioni aggiuntive

  • Arredamento: Non Specificato
  • Riscaldamento: Non Specificato
  • Cucina: Cucina abitabile
  • Condizioni: Ristrutturato

Efficienza Energetica

  • Classe Energetica: Non Comunicata
  • I.P.E.: 0.00 kWh/m2anno

Indirizzo Caricamento...