logo mondocasa
  • in Vendita
  • Mq.: 55

Descrizione

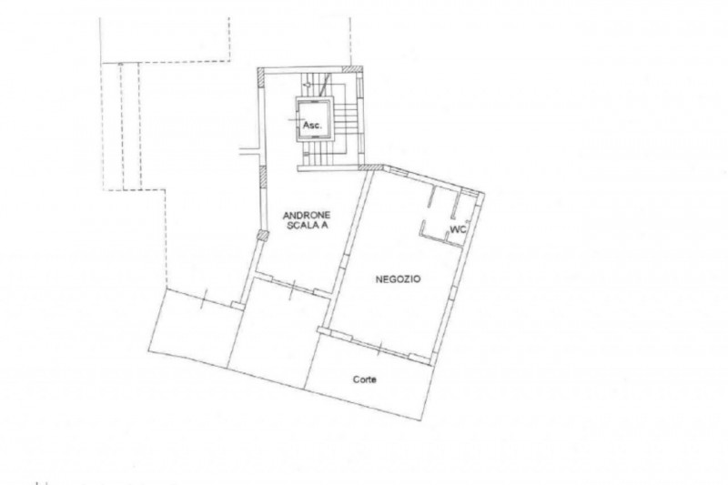
Quest’immobile viene venduto tramite asta online. Negozio al piano terra di complesso residenziale sito a Reggio Calabria (RC), in località Archi, via SS 18 Tirrena Inferiore. Trattasi di locale commerciale adibito a rivendita di generi alimentari, composto da un unico vano con ingresso su strada, parzialmente separato in due distinte aree, di cui la maggiore su strada destinata alla ricezione del pubblico e la minore, sul retro, destinata a disimpegno per i servizi e a deposito.

Il locale è inoltre dotato di un bagno con relativo antibagno/lavanderia. Il bene è dotato di pavimenti in gres ceramico, pareti intonacate e tinteggiate, impianti idrico ed elettrico sottotraccia, antintrusione e boiler elettrico per la produzione d’acqua calda sanitaria. Superficie: 55 mq Offerta minima: 22212 EURO. Quimmo.it: iniziativa tech del Gruppo illimity specializzata nell’intermediazione digitale di beni immobili provenienti da tribunali, nuovi sviluppi immobiliari, financial institutions e libero mercato. Da oltre 10 anni Quimmo.it è il portale specializzato nella compravendita di immobili tramite asta giudiziaria. Il portale è infatti iscritto nel Registro Gestori della vendita telematica e nell’elenco dei siti web autorizzati allo svolgimento della pubblicità legale. Con Quimmo puoi scegliere tra migliaia di immobili di ogni tipo e partecipare alle aste online per acquistare la soluzione più adatta alle tue esigenze. Affidati all’esperienza decennale dei nostri esperti e richiedi l’assistenza gratuita per la presentazione e compilazione dell’offerta. Contattaci subito. --- annuncio pubblicato con GESTIONALEIMMOBILIARE.it.

Dettagli

  • ID Annuncio: 47471011
  • Prezzo: € 22.212
  • Superficie: 55 m²
  • Pubblicazione: 20/10/2025
  • Tipologia:
  • Contratto:

Informazioni addizionali

  • Arredamento: Non Specificato
  • Riscaldamento: Non Specificato
  • Cucina: Non Specificata
  • Condizioni: Non Specificate

Efficienza Energetica

  • Classe Energetica: Non Comunicata
  • I.P.E.: 0.00 kWh/m3anno

Indirizzo Caricamento...