logo mondocasa

Negozio

€ 40.489

  • in Vendita
  • Bagni: 2
  • Mq.: 135

Descrizione

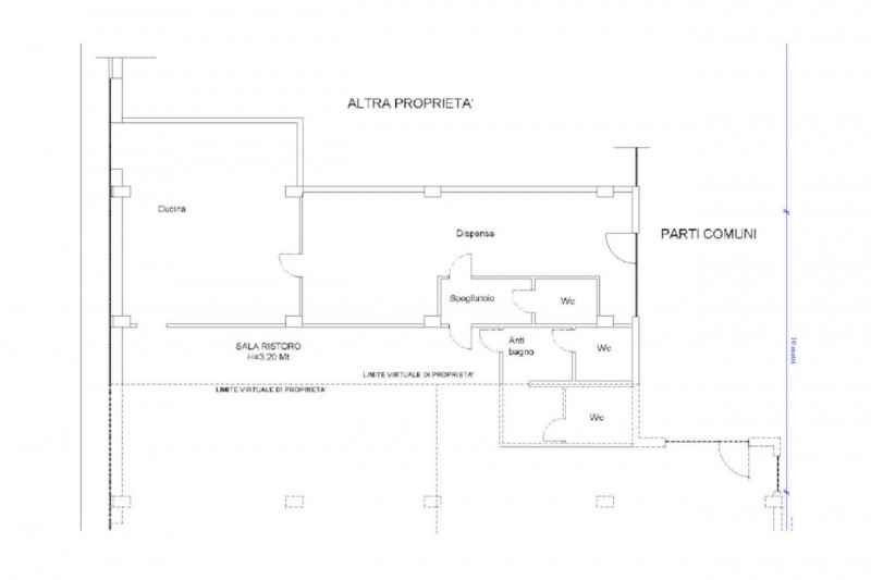
Quest’immobile viene venduto tramite asta online. Parte di locale commerciale adibito a ristorante con garage sito a Gubbio (PG), in via Don Giuseppe Diana. I beni sono ricompresi all’interno di un complesso polifunzionale artigianale/direzionale/commerciale, sviluppato quattro piani fuori terra ed uno interrato, ubicato in zona a destinazione mista residenziale e commerciale, caratterizzata da elevata densità edilizia e buona dotazione di servizi pubblici ed infrastrutture, posta a breve distanza dal centro storico della città.

Il locale commerciale è posto al piano terra e fa parte di un’unità immobiliare di maggiore consistenza insieme a due porzioni di altra proprietà, dalle quali è separato solamente da un limite virtuale individuato in planimetria catastale. Internamente è composto da cucina, dispensa, spogliatoio con bagno, bagno con antibagno e porzione di sala ristoro. Completa la proprietà un garage posto al piano primo interrato. Sono inoltre compresi diritti proporzionali su beni comuni, rappresentati da parcheggio interrato, ballatoio e galleria. Per maggiori informazioni vedasi documentazione allegata. L’immobile risulta locato secondo regolare contratto d’affitto. Immobile descritto in Perizia allegata come “Lotto 3”. Superfici commerciali: Ristorante: 135 mq Garage: 30,50 mq Offerta minima: 40489 EURO. Quimmo.it: iniziativa tech del Gruppo illimity specializzata nell’intermediazione digitale di beni immobili provenienti da tribunali, nuovi sviluppi immobiliari, financial institutions e libero mercato. Da oltre 10 anni Quimmo.it è il portale specializzato nella compravendita di immobili tramite asta giudiziaria. Il portale è infatti iscritto nel Registro Gestori della vendita telematica e nell’elenco dei siti web autorizzati allo svolgimento della pubblicità legale. Con Quimmo puoi scegliere tra migliaia di immobili di ogni tipo e partecipare alle aste online per acquistare la soluzione più adatta alle tue esigenze. Affidati all’esperienza decennale dei nostri esperti e richiedi l’assistenza gratuita per la presentazione e compilazione dell’offerta. Contattaci subito. --- annuncio pubblicato con GESTIONALEIMMOBILIARE.it.

Dettagli

  • ID Annuncio: 47472182
  • Prezzo: € 40.489
  • Superficie: 135 m²
  • Pubblicazione: 20/10/2025
  • Tipologia:
  • Bagni: 2
  • Contratto:

Informazioni addizionali

  • Arredamento: Non Specificato
  • Riscaldamento: Climatizzato
  • Cucina: Non Specificata
  • Condizioni: Non Specificate

Efficienza Energetica

  • Classe Energetica: Non Comunicata
  • I.P.E.: 0.00 kWh/m3anno

Indirizzo Caricamento...