logo mondocasa
Emilia Romagna - Provincia di Modena - Cavezzo

Ufficio

€ 2.100

  • in Affitto
  • Locali: 6
  • Mq.: 370

Descrizione

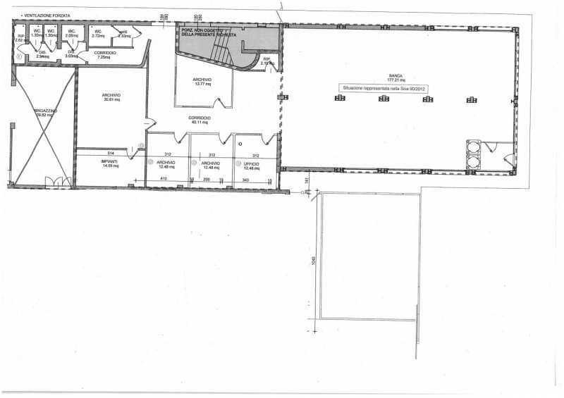
LOC 549 PER INFO E VISITE CONTATTARE FEDERICO 3534379161 Proponiamo in affitto, a poca distanza dal centro storico di Cavezzo, un ampio locale commerciale di circa 370 mq, completamente ristrutturato a seguito del terremoto. L'immobile è così composto: ingresso su ampio locale open space, corridoio, cinque uffici, due ripostigli, un locale tecnico e cinque bagni, di cui uno per persone con disabilità.

Il locale commerciale comprende parcheggi riservati e un'uscita d'emergenza sul retro. I sistemi di riscaldamento e raffrescamento sono tutti elettrici, con split a parete negli uffici. PRONTA CONSEGNA! --- annuncio pubblicato con GESTIONALEIMMOBILIARE.it.

Dettagli

  • ID Annuncio: 47488471
  • Prezzo: € 2.100
  • Superficie: 370 m²
  • Pubblicazione: 22/09/2025
  • Tipologia:
  • Locali: 6
  • Contratto:

Informazioni addizionali

  • Arredamento: Non Specificato
  • Riscaldamento: Climatizzato
  • Cucina: Non Specificata
  • Condizioni: Ottimo Stato

Efficienza Energetica

  • Classe Energetica: Non Comunicata
  • I.P.E.: 0.00 kWh/m3anno

Indirizzo Caricamento...