logo mondocasa
Emilia Romagna - Provincia di Ravenna - Alfonsine

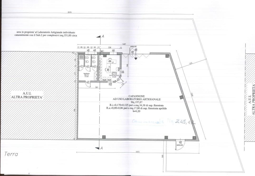
Capannone

€ 93.000

  • in Vendita
  • Locali: 3
  • Bagno: 1
  • Mq.: 250

Descrizione

Posizione ideale per la vostra attività ad Alfonsine! In vendita un funzionale capannone artigianale situato nella zona artigianale Raspona di Alfonsine, perfettamente collegato sia al centro del paese che alla variante della SS 16. Il capannone è ora allo stato grezzo avanzato, potrai adattarlo alle tue esigenze.

- Superficie totale: 250 mq, allo stato grezzo avanzato, pronto per essere personalizzato secondo le esigenze della vostra attività. - Ingresso carraio: Ampio e comodo, ideale anche per mezzi di grandi dimensioni. - Corte esterna: Circonda l'immobile su tre lati e offre un vasto spazio di 350 mq per manovre e parcheggi. Ambiente di lavoro: - Vasto spazio operativo di 197 mq: Progettato per ospitare una varietà di macchinari, attrezzature e materiali. Le ampie finestrature alte garantiscono una buona illuminazione naturale, migliorando le condizioni di lavoro. - Ufficio: 13 mq di spazio confortevole e funzionale per gestire le attività amministrative e di coordinamento. - Zona spogliatoio: 7 mq, dotata di doppi servizi, pensata per garantire il massimo comfort al personale con spazi adeguati per cambiarsi e rinfrescarsi. Opportunità Questo capannone artigianale rappresenta un’occasione per chi cerca uno spazio versatile e ben posizionato. La sua configurazione spaziosa e le numerose possibilità di personalizzazione lo rendono adatto a diverse tipologie di attività artigianali e produttive. Composizione: Piano Terra - Zona lavoro mq 197 - Ufficio - Bagno - spogliatoio Contattaci per la visita: infoline 054480462 e-mail info@agenziacontarini.it.

Dettagli

  • ID Annuncio: 47706036
  • Prezzo: € 93.000
  • Superficie: 250 m²
  • Pubblicazione: 25/02/2025
  • Tipologia:
  • Locali: 3
  • Bagni: 1
  • Contratto:

Informazioni addizionali

  • Arredamento: Non Specificato
  • Riscaldamento: Non Specificato
  • Cucina: Non Specificata
  • Condizioni: Non Specificate

Efficienza Energetica

  • Classe Energetica: Non Comunicata
  • I.P.E.: 0