logo mondocasa
Lombardia - Provincia di Como - Como

Negozio

€ 240.000

  • in Vendita
  • Bagni: 2
  • Mq: 120

Descrizione

Albate, in zona strategica vicino alle scuole e al campo da calcio Gigi Meroni, proponiamo un locale ad uso commerciale con vetrine, sito all'interno di una palazzina signorile di recente edificazione. it.

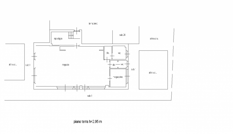
Il locale si estende al piano terreno con una forma regolare per circa 120 metri quadrati ed è caratterizzato da ampie vetrate che si affacciano su un parco giochi, dotato di aria condizionata e doppi servizi (privato/clienti). Il locale oltre ad un open space dispone di una piccola stanza finestrata ad uso deposito/cucina/laboratorio/ufficio. Possibilità di acquistare fino a 5 posti auto dedicati, situati nelle vicinanze, al prezzo di € 12. 500 ciascuno, offrendo così una soluzione comoda per i clienti o il personale. --- annuncio pubblicato con GESTIONALEIMMOBILIARE.

Dettagli

  • ID Annuncio: 47977239
  • Prezzo: € 240.000
  • Superficie: 120 m²
  • Pubblicazione: 22/09/2025
  • Tipologia:
  • Bagni: 2
  • Contratto:

Informazioni aggiuntive

  • Arredamento: Non Specificato
  • Riscaldamento: Climatizzato
  • Cucina: Non Specificata
  • Condizioni: Ottimo Stato

Efficienza Energetica

  • Classe Energetica: Classe Energetica
  • I.P.E.: 0.00 kWh/m3anno

Indirizzo Caricamento...