logo mondocasa

Indipendente

€ 45.000

  • in Vendita
  • Locali: 10
  • Bagni: 3
  • Mq.: 120

Descrizione

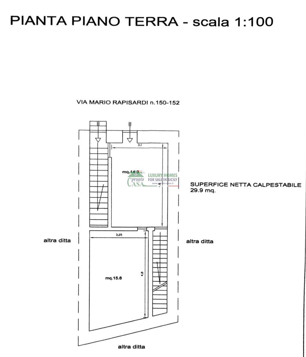
La Pronto Casa Group propone in vendita, nei pressi di Piazza San Giovanni a Ragusa, casa indipendente. Il cespite, in discreto stato di conservazione, si sviluppa su quattro livelli per una superficie complessiva di circa 120 mq. Pur mantenendo le caratteristiche originarie, gli spazi si prestano a diverse soluzioni abitative, turistiche o di investimento, grazie alla presenza di più vani ed alla possibilità di rendere indipendenti i diversi piani.

CARATTERISTICHE PRINCIPALI: - piano terra con ingresso indipendente, composto da due vani con servizio e scala interna in pece che conduce al piano ammezzato; - piano ammezzato: composto da due vani e ripostiglio; - piano primo composto da due vani, bagno, ripostiglio e cucinino, con accesso tramite una scala indipendente condivisa solo con il secondo piano; - piano secondo composto da tre vani, bagno e cucinino. SPAZI ESTERNI: La proprietà è arricchita dalla presenza di due balconi e altri tre alla romana. Per maggiori informazioni sull'immobile o per fissare un appuntamento contatta la filiale Pronto Casa Group - Point 3 Ragusa, al numero 0932/1885279. Visita il nostro sito web per scoprire tutti gli annunci simili disponibili in città..

Dettagli

  • ID Annuncio: 48568710
  • Prezzo: € 45.000
  • Superficie: 120 m²
  • Pubblicazione: 06/10/2025
  • Tipologia:
  • Locali: 10
  • Bagni: 3
  • Contratto:

Informazioni addizionali

  • Arredamento: Vuoto
  • Riscaldamento: Non Specificato
  • Cucina: Angolo cottura
  • Condizioni: Da Ristrutturare

Efficienza Energetica

  • Classe Energetica:
  • I.P.E.: 0

Indirizzo Caricamento...