logo mondocasa
Emilia Romagna - Provincia di Modena - Soliera

Negozio

€ 155.000

  • in Vendita
  • Bagni: 3
  • Mq.: 0

Descrizione

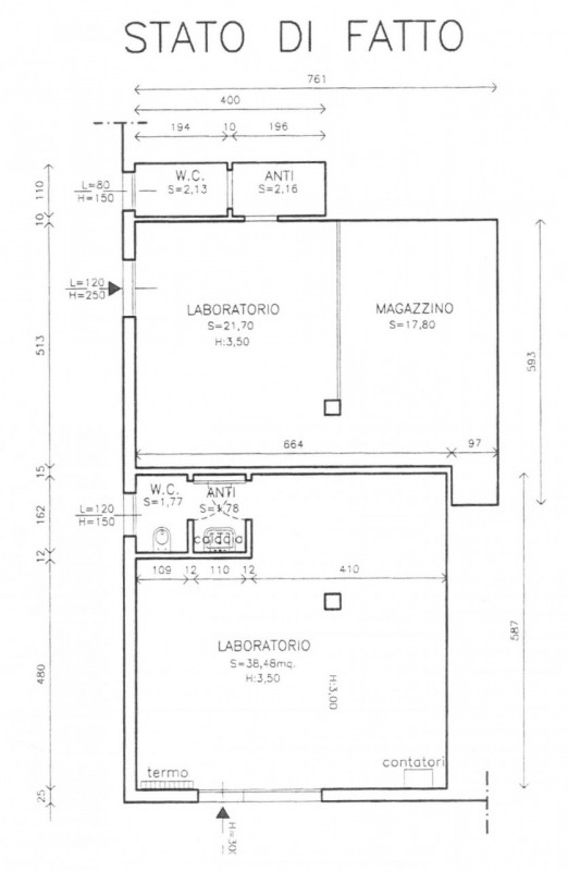
U 172 per info e appuntamenti ALBERTO 3272241200 Proponiamo in vendita tre immobili commerciali adiacenti in zona Limidi di Soliera, situati su una strada di forte passaggio garantiscono visibilità e accesso facile ai clienti. Il primo locale è un negozio ampio di 80 mq, perfetto per qualsiasi tipo di attività, completato da un magazzino privato e bagno; gli altri due locali sono laboratori anch'essi dotati di bagno privato.

Il prezzo esposto è per tutti i locali a blocco, possibilità di acquistare i locali singolarmente. Solo due dei tre immobili sono a reddito. --- annuncio pubblicato con GESTIONALEIMMOBILIARE.it.

Dettagli

  • ID Annuncio: 48573366
  • Prezzo: € 155.000
  • Superficie: 0 m²
  • Pubblicazione: 22/09/2025
  • Tipologia:
  • Bagni: 3
  • Contratto:

Informazioni addizionali

  • Arredamento: Non Specificato
  • Riscaldamento: Climatizzato
  • Cucina: Non Specificata
  • Condizioni: Buono Stato

Efficienza Energetica

  • Classe Energetica: Non Comunicata
  • I.P.E.: 0.00 kWh/m3anno

Indirizzo Caricamento...