logo mondocasa

Laboratorio

€ 2.000

  • in Affitto
  • Bagni: 2
  • Mq.: 700

Descrizione

Scopri un ottima opportunità nel produttivo del Comune di Rubano! Questo spazioso Laboratorio/ufficio, situato in una delle zone più strategiche e dinamiche della città, è ideale per professionisti o aziende che desiderano stabilire la propria presenza in un'area ben collegata e ricca di servizi.

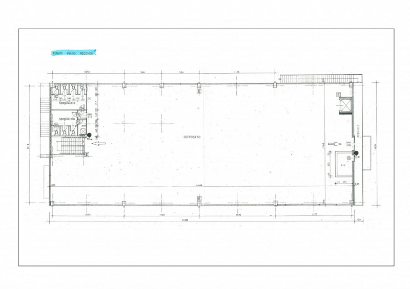
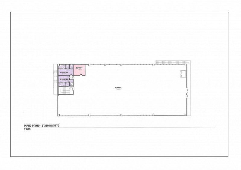
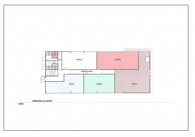
L'immobile offre una superficie ampia e luminosa, con una disposizione degli spazi altamente funzionale su due piani. Al primo piano troviamo un ampio open space ad uso ufficio e un comodo bagno di servizio. Al secondo piano, un grande spazio laboratorio/deposito/ufficio, facilmente accessibile grazie al montacarichi, e due spogliatoi separati, ciascuno con 4 e 3 wc. La posizione centrale permette un facile accesso ai mezzi pubblici locali (bus e tram), rendendolo perfetto per chi deve recarsi spesso nella zona urbana circostante. L'immobile è in discreto stato di conservazione e manutenzione ed è dotato di impianto elettrico. Inoltre, nei dintorni sono presenti numerosi servizi tra cui bar, ristoranti e centri commerciali; tutto ciò contribuisce a rendere questa area non solo funzionale ma anche piacevole da frequentare quotidianamente. Per ulteriori informazioni su questo straordinario ufficio o per organizzare una visita sul posto, ti invitiamo a contattare la nostra agenzia immobiliare di riferimento: saremo lieti di assisterti nell’acquisto della tua nuova sede lavorativa! Vicinanze a Mestrino, Campodoro, Villafranca Padovana, Rubano, Cervarese Santa Croce, Saccolongo, Limena, Veggiano, Selvazzano Dentro, Abano Terme e Padova. --- annuncio pubblicato con GESTIONALEIMMOBILIARE.it.

Dettagli

  • ID Annuncio: 48631311
  • Prezzo: € 2.000
  • Superficie: 700 m²
  • Pubblicazione: 21/10/2025
  • Tipologia:
  • Bagni: 2
  • Contratto:

Informazioni addizionali

  • Arredamento: Non Specificato
  • Riscaldamento: Non Specificato
  • Cucina: Non Specificata
  • Condizioni: Non Specificate

Efficienza Energetica

  • Classe Energetica:
  • I.P.E.: 135.36 kWh/m3anno

Indirizzo Caricamento...