logo mondocasa
Emilia Romagna - Provincia di Ravenna - Cervia

Capannone

€ 820.000

  • in Vendita
  • Bagni: 4
  • Mq.: 1.800

Descrizione

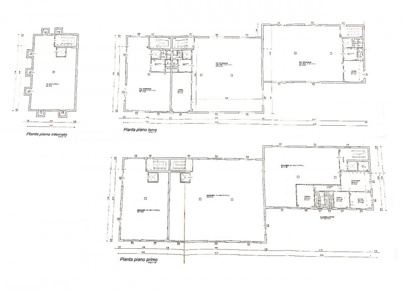
A Cervia zona Castiglione, vendiamo capannone indipendente di totali 1.800 mq di cui uffici/servizi di 500 mq con appartamento ed esterno perimetrale di circa 1.700 mq su lotto di circa 2.600 mq. Il complesso è su 2 livelli entrambe di 900 mq con 3 montacarichi e portoni perimetrali.

Immobile in ottime condizioni e con tutti impianti a norma. Richiesta 820.000 euro per info Roberto 3486440700 SONO SPECIALIZZATO IN IMMOBILI COMMERCIALI --- capannoni, uffici, negozi ma anche attività attive o inattive --- Chiamatemi direttamente per sottoporvi panoramica di immobili idonei. Oppure scrivetemi a info@passeriniimmobiliare.com le seguenti informazioni: - attività o uso che si intende svolgere - tipologia di immobile - mq necessari di interno specificando quanti uffici e altri vani - mq di esterno se necessari (corte privata o fronte strada di passaggio..) - zona ideale - budget massimo disponibile Vi contatterò quanto prima con una panoramica di proposte Grazie Ape D --- annuncio pubblicato con GESTIONALEIMMOBILIARE.it.

Dettagli

  • ID Annuncio: 48661812
  • Prezzo: € 820.000
  • Superficie: 1.800 m²
  • Pubblicazione: 22/09/2025
  • Tipologia:
  • Bagni: 4
  • Contratto:

Informazioni addizionali

  • Arredamento: Non Specificato
  • Riscaldamento: Climatizzato
  • Cucina: Non Specificata
  • Condizioni: Ottimo Stato

Efficienza Energetica

  • Classe Energetica:
  • I.P.E.: 0.00 kWh/m3anno

Indirizzo Caricamento...