logo mondocasa
  • in Vendita
  • Locali: 8
  • Bagni: 3
  • Mq.: 210

Descrizione

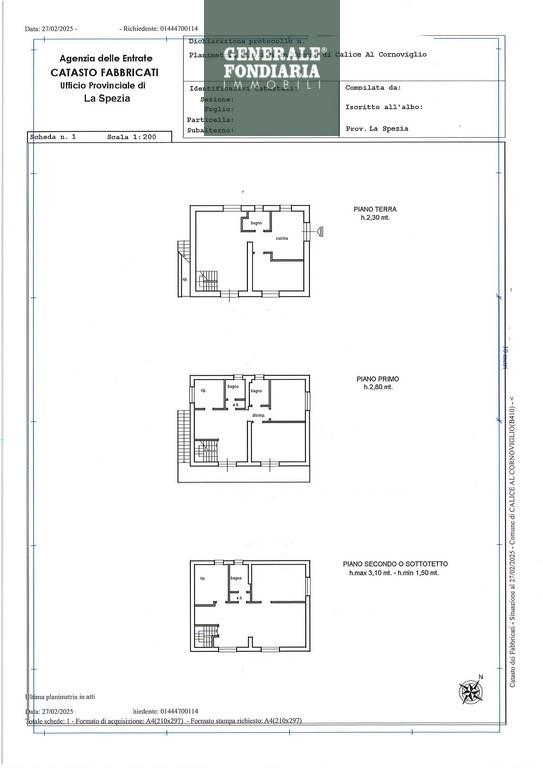
-Rif.5316- Proponiamo IN ESCLUSIVA a Bruscarolo, nel comune di Calice al Cornoviglio, una casa indipendente immersa nella natura, perfetta per chi cerca tranquillità e ampi spazi, a dieci chilometri circa da Ceparana. Appena varcata la soglia, si viene accolti da un ampio e luminoso soggiorno con camino, adiacente si trova la cucina dotata di accesso esterno.

Sempre al piano terra si trovano un bagno finestrato con doccia e una stanza che può essere utilizzata come studio o cameretta, a seconda delle esigenze. Salendo al primo piano si accede alla zona notte, dove un comodo disimpegno collega una spaziosa camera matrimoniale e due camerette, tutte con finestre panoramiche che regalano una splendida vista sulla vallata circostante. Su questo piano si trovano anche due bagni, entrambi finestrati, uno con doccia e l’altro con vasca, oltre a un grande balcone angolare con tende da sole, ideale per godersi il panorama. Questo piano ha anche un ingresso indipendente, perfetto per chi desidera suddividere l’immobile in due unità abitative, magari per accogliere due famiglie. Al piano mansardato, che è stato sopraelevato nel 2017, si presenta uno spazio moderno e arioso, con travi a vista che ne esaltano il carattere rustico ma elegante. Qui troviamo un grande open space, due camere da letto e un quarto bagno, anch’esso finestrato e con doccia. All’esterno la proprietà si estende su un terreno di circa 1500 mq, ideale per chi ama il giardinaggio o desidera coltivare un orto. Completano la casa due cantine, una delle quali climatizzata, perfette per avere spazi extra dove dedicarsi alle proprie passioni o semplicemente per organizzare al meglio tutto ciò che serve. Gli interni della casa sono luminosi e confortevoli, e pur essendo in stato originario, offrono infinite possibilità di personalizzazione. La casa è comunque abitabile da subito e può essere vissuta così com’è, oppure trasformata secondo i propri gusti ed esigenze. Il piano mansardato, essendo stato realizzato recentemente, è molto più moderno rispetto al resto della casa. Anche il tetto è stato rifatto nel 2017, mentre la facciata si presenta in buono stato. Gli infissi sono tutti nuovi, Finestral, con persiane in alluminio. La casa è dotata di aria condizionata sia al primo piano che in mansarda, mentre il riscaldamento è alimentato a GPL. È presente anche una fossa Imhoff e una cisterna da 6000 ....

Dettagli

  • ID Annuncio: 48691159
  • Prezzo: € 199.000
  • Superficie: 210 m²
  • Pubblicazione: 24/04/2025
  • Tipologia:
  • Locali: 8
  • Bagni: 3
  • Contratto:

Informazioni addizionali

  • Arredamento: Vuoto
  • Riscaldamento: Non Specificato
  • Cucina: Cucina abitabile
  • Condizioni: Buono Stato

Efficienza Energetica

  • Classe Energetica:
  • I.P.E.: 0