logo mondocasa

Indipendente

€ 280.000

  • in Vendita
  • Locali: 3
  • Bagni: 2
  • Mq: 130

Descrizione

Proponiamo in vendita una casa singola in fase di costruzione, situata a Loreggiola, una frazione del comune di Loreggia. Il prezzo è da intendersi con consegna "al grezzo avanzato". 13. it --- annuncio pubblicato con GESTIONALEIMMOBILIARE. it.

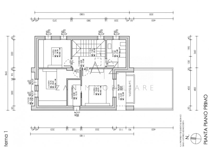
Con una superficie generosa di 130 mq, questo immobile rappresenta un'opportunità imperdibile per chi cerca comfort e tranquillità. La casa è stata così pensata e suddivisa: ingresso su cucina e soggiorno, con ampie vetrate che illuminano la stanza su tre lati, una di queste dà al portico esterno di circa 28 mq, bagno di servizio e lavanderia di circa 12 mq. Salendo al primo piano invece, un corridoi porta ad un bagno, una prima camera da 12 mq, una seconda camera da 15 mq con loggia, ed una terza camera, padronale, di circa 15 mq, con cabina armadio interna di 4,5 mq e loggia che si affaccia al giardino di proprietà. L’intervento prevede la costruzione di 4 case unifamiliari, ognuna su lotto pertinenziale esclusivo di circa 550 mq (da 535 mq fino a 580 mq). La strada di accesso resterà ad uso esclusivo e comune alle quattro residenze, pertanto, volendo, all’inizio può essere installata una sbarra sollevabile elettronicamente dai residenti. Il parcheggio esterno, lungo la strada comunale, rimane privato e comune alle residenze ma ad uso pubblico. Le murature portanti sono realizzate utilizzando blocchi/cassero ISOSPAN con getto di cls e isolamento di cm. 5 verso l’esterno, mentre la copertura inclinata è in legno, con isolamento di 25 cm. L’impianto di riscaldamento è previsto elettrico con pompa calore, vista la presenza di fotovoltaici in copertura. Per maggiori informazioni contattare Consulente Nicola: 3279192859 - nicola@zanimmobiliare.

Dettagli

  • ID Annuncio: 48793505
  • Prezzo: € 280.000
  • Superficie: 130 m²
  • Pubblicazione: 05/12/2025
  • Tipologia:
  • Locali: 3
  • Bagni: 2
  • Contratto:

Informazioni aggiuntive

  • Arredamento: Non Specificato
  • Riscaldamento: Non Specificato
  • Cucina: Non Specificata
  • Condizioni: Non Specificate

Efficienza Energetica

  • Classe Energetica: Non Comunicata
  • I.P.E.: 0.00 kWh/m2anno

Indirizzo Caricamento...