logo mondocasa

Capannone

€ 3.500

  • in Affitto
  • Bagni: 3
  • Mq.: 1.800

Descrizione

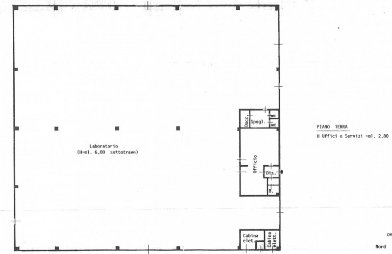
LOC 571 Per info e appuntamenti ALBERTO 3272241200 Proponiamo un ampio capannone libero su 4 lati in affitto della superficie complessiva di 1800 mq, questo immobile offre una soluzione perfetta per attività industriali o logistiche, grazie alla sua versatilità e ottima posizione.

Caratterizzato da quattro ingressi carrai che facilitano l'accesso ai mezzi pesanti, il capannone è anche dotato di due entrate pedonali per garantire la massima praticità al personale. All'interno troviamo tre bagni ben distribuiti, ideali per soddisfare le esigenze quotidiane del vostro team. Il tetto dell'immobile è stato recentemente ristrutturato nel 2024 inoltre, questo capannone dispone di una cabina elettrica potente con oltre 100 kW disponibili, rendendolo adatto anche a progetti che richiedono energia elevata. L'immobile è libero! CAPANNONE DISPONIBILE ANCHE IN VENDITA. PER INFO 3272241200 Alberto --- annuncio pubblicato con GESTIONALEIMMOBILIARE.it.

Dettagli

  • ID Annuncio: 48821682
  • Prezzo: € 3.500
  • Superficie: 1.800 m²
  • Pubblicazione: 25/09/2025
  • Tipologia:
  • Bagni: 3
  • Contratto:

Informazioni addizionali

  • Arredamento: Non Specificato
  • Riscaldamento: Non Specificato
  • Cucina: Non Specificata
  • Condizioni: Buono Stato

Efficienza Energetica

  • Classe Energetica:
  • I.P.E.: 148.70 kWh/m3anno

Indirizzo Caricamento...