logo mondocasa

Stabile / Palazzo

€ 59.535

  • in Vendita
  • Mq.: 817

Descrizione

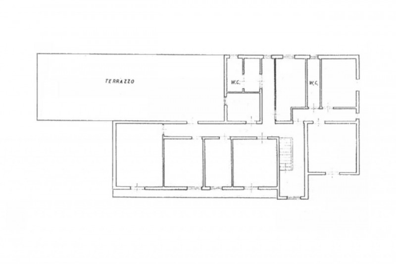
Quest’immobile viene venduto tramite asta online. Fabbricato da riqualificare sito a Melilli (SR), in Contrada Passo Siracusa. Trattasi di edificio in stato di totale abbandono di due piani fuori terra ed uno interrato, con corte pertinenziale, ubicato in zona industriale.

L’accesso avviene direttamente dalla pubblica via attraverso un piazzale antistante il fabbricato non recintato. Il fabbricato è composto dal piano terra da tre stanze, una cucina, due wc ed un piccolo locale; il piano primo, raggiungibile mediante sia scala interna che scala esterna, è composto da otto stanze, due wc ed un terrazzo; il piano seminterrato è composto da otto stanze, due ripostigli, una cantina e due wc. Tutto il perimetro del fabbricato è avvolto da vegetazione spontanea che ne rendono impossibile l’avvicinamento. L’intero fabbricato presenta crolli parziali ed è in pessimo stato manutentivo e conservativo. Per maggiori informazioni vedasi documentazione allegata. Cessione aziendale in vendita sul sito Industrialdiscount.it al seguente LINK. Superficie terreno: 747 mq Quimmo.it: iniziativa tech del Gruppo illimity specializzata nell’intermediazione digitale di beni immobili provenienti da tribunali, nuovi sviluppi immobiliari, financial institutions e libero mercato. Da oltre 10 anni Quimmo.it è il portale specializzato nella compravendita di immobili tramite asta giudiziaria. Il portale è infatti iscritto nel Registro Gestori della vendita telematica e nell’elenco dei siti web autorizzati allo svolgimento della pubblicità legale. Con Quimmo puoi scegliere tra migliaia di immobili di ogni tipo e partecipare alle aste online per acquistare la soluzione più adatta alle tue esigenze. Affidati all’esperienza decennale dei nostri esperti e richiedi l’assistenza gratuita per la presentazione e compilazione dell’offerta. Contattaci subito. --- annuncio pubblicato con GESTIONALEIMMOBILIARE.it.

Dettagli

  • ID Annuncio: 48833179
  • Prezzo: € 59.535
  • Superficie: 817 m²
  • Pubblicazione: 24/10/2025
  • Tipologia:
  • Contratto:

Informazioni addizionali

  • Arredamento: Non Specificato
  • Riscaldamento: Non Specificato
  • Cucina: Non Specificata
  • Condizioni: Da Ristrutturare

Efficienza Energetica

  • Classe Energetica: Non Comunicata
  • I.P.E.: 0.00 kWh/m2anno

Indirizzo Caricamento...