logo mondocasa
Emilia Romagna - Provincia di Ravenna - Faenza

Capannone

€ 825.000

  • in Vendita
  • Bagni: 2
  • Mq.: 3.060

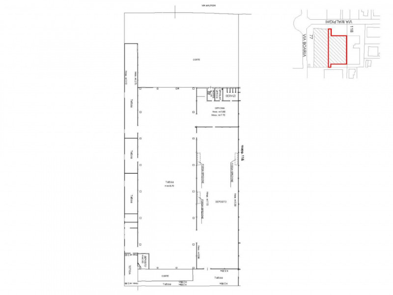
Descrizione

Quest’immobile viene venduto tramite asta online. Porzione di capannone con corte sito a Faenza (RA), via della Boaria 52. Il bene in oggetto fa parte di un complesso produttivo composto da tre fabbricati accorpati prevalentemente ad uso produttivo terziario e servizi, con accesso da più ingressi carrabili e pedonali sia da via Boaria che da via Malpighi, ubicato in zona industriale, strategica dal punto di vista logistico.

Trattasi di capannone in parte ad uso magazzino e in parte ad uso uffici con relativi servizi, ampia tettoia e a porzione di area scoperta di pertinenza. Per maggiori informazioni vedasi documentazione allegata. Immobile descritto in Perizia allegata come “Lotto 3 e 52.3”. Gli altri due fabbricati confinanti sono in vendita ai seguenti link: [LOTTO 1](https://www.quimmo.it/annunci-immobili/artigianali-via-boaria-n-52-faenza-ravenna-25790), [LOTTO 2](https://www.quimmo.it/annunci-immobili/artigianali-via-boaria-n-52-faenza-ravenna-25791). Quimmo.it: iniziativa tech del Gruppo illimity specializzata nell’intermediazione digitale di beni immobili provenienti da tribunali, nuovi sviluppi immobiliari, financial institutions e libero mercato. Da oltre 10 anni Quimmo.it è il portale specializzato nella compravendita di immobili tramite asta giudiziaria. Il portale è infatti iscritto nel Registro Gestori della vendita telematica e nell’elenco dei siti web autorizzati allo svolgimento della pubblicità legale. Con Quimmo puoi scegliere tra migliaia di immobili di ogni tipo e partecipare alle aste online per acquistare la soluzione più adatta alle tue esigenze. Affidati all’esperienza decennale dei nostri esperti e richiedi l’assistenza gratuita per la presentazione e compilazione dell’offerta. Contattaci subito. --- annuncio pubblicato con GESTIONALEIMMOBILIARE.it.

Dettagli

  • ID Annuncio: 48838754
  • Prezzo: € 825.000
  • Superficie: 3.060 m²
  • Pubblicazione: 22/10/2025
  • Tipologia:
  • Bagni: 2
  • Contratto:

Informazioni addizionali

  • Arredamento: Non Specificato
  • Riscaldamento: Non Specificato
  • Cucina: Non Specificata
  • Condizioni: Non Specificate

Efficienza Energetica

  • Classe Energetica: Non Comunicata
  • I.P.E.: 0.00 kWh/m3anno

Indirizzo Caricamento...