logo mondocasa

Negozio

€ 28.126

  • in Vendita
  • Bagno: 1
  • Mq.: 60

Descrizione

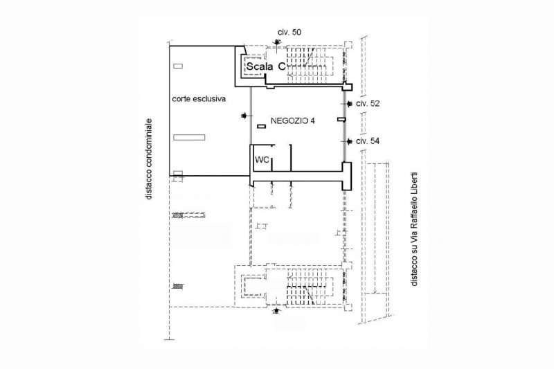
Quest’immobile viene venduto tramite asta online. Ottima opportunità a Roma in via Raffaello Liberti 52-54. Locale commerciale situato al piano terra di edificio condominiale, censito catastalmente al subalterno 4 e distinto con l’interno 4. Il negozio è composto da un ampio open space, antibagno e bagno.

La proprietà include una cantina al piano seminterrato e una corte esterna esclusiva al piano terra. L’accesso al locale commerciale avviene tramite le vetrine situate ai civici n. 52-54 di via Raffaello Liberti. La cantina è raggiungibile attraverso la scala condominiale D e, tramite il corridoio, si arriva alla porta di accesso della pertinenza. Sia il locale commerciale che la cantina si presentano allo stato grezzo. Questo immobile è descritto in perizia come Lotto 04. Quimmo.it: iniziativa tech del Gruppo illimity specializzata nell’intermediazione digitale di beni immobili provenienti da tribunali, nuovi sviluppi immobiliari, financial institutions e libero mercato. Da oltre 10 anni Quimmo.it è il portale specializzato nella compravendita di immobili tramite asta giudiziaria. Il portale è infatti iscritto nel Registro Gestori della vendita telematica e nell’elenco dei siti web autorizzati allo svolgimento della pubblicità legale. Con Quimmo puoi scegliere tra migliaia di immobili di ogni tipo e partecipare alle aste online per acquistare la soluzione più adatta alle tue esigenze. Affidati all’esperienza decennale dei nostri esperti e richiedi l’assistenza gratuita per la presentazione e compilazione dell’offerta. Contattaci subito. --- annuncio pubblicato con GESTIONALEIMMOBILIARE.it.

Dettagli

  • ID Annuncio: 48838894
  • Prezzo: € 28.126
  • Superficie: 60 m²
  • Pubblicazione: 23/10/2025
  • Tipologia:
  • Bagni: 1
  • Contratto:

Informazioni addizionali

  • Arredamento: Non Specificato
  • Riscaldamento: Non Specificato
  • Cucina: Non Specificata
  • Condizioni: Non Specificate

Efficienza Energetica

  • Classe Energetica: Non Comunicata
  • I.P.E.: 0.00 kWh/m3anno

Indirizzo Caricamento...