logo mondocasa

Appartamento

€ 21.618

  • in Vendita
  • Locali: 1
  • Bagno: 1
  • Mq.: 48

Descrizione

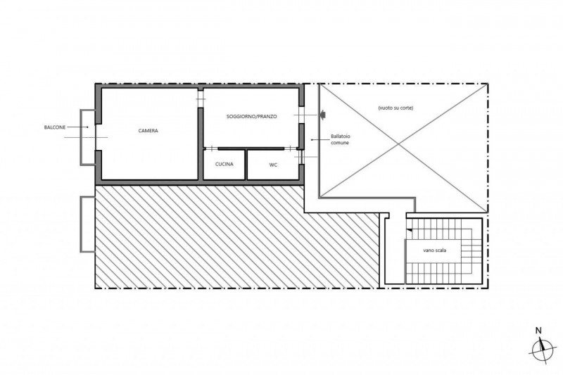
Quest’immobile viene venduto tramite asta online. Appartamento, sito nel Comune di Trapani (TP), Via Lonero n. 23. L’unità fa parte di un maggiore fabbricato a tre elevazioni fuori terra. Si trova in una zona centrale e ben servita, classificata urbanisticamente come zona A1 - Zona del centro storico urbano – per come individuato nel P.

R.G. del Comune. L’appartamento, situato al piano secondo, ha una superficie utile complessiva di 38,49 mq e si compone di un soggiorno/pranzo, una camera da letto, un cucinino e un wc. Inoltre, l’unità abitativa dispone di un balcone scoperto di 1,85 mq. Internamente, l’appartamento è in discrete condizioni di manutenzione, con pavimenti in parquet e infissi in legno. Il servizio igienico è piastrellato sia a pavimento che a parete. Sono presenti difformità, meglio specificate in perizia (pag 42 e 44). I beni mobili presenti all’interno non sono oggetto della presente vendita. Per maggiori dettagli consultare la documentazione allegata. Bene descritto in perizia come LOTTO 4. Quimmo.it: iniziativa tech del Gruppo illimity specializzata nell’intermediazione digitale di beni immobili provenienti da tribunali, nuovi sviluppi immobiliari, financial institutions e libero mercato. Da oltre 10 anni Quimmo.it è il portale specializzato nella compravendita di immobili tramite asta giudiziaria. Il portale è infatti iscritto nel Registro Gestori della vendita telematica e nell’elenco dei siti web autorizzati allo svolgimento della pubblicità legale. Con Quimmo puoi scegliere tra migliaia di immobili di ogni tipo e partecipare alle aste online per acquistare la soluzione più adatta alle tue esigenze. Affidati all’esperienza decennale dei nostri esperti e richiedi l’assistenza gratuita per la presentazione e compilazione dell’offerta. Contattaci subito. --- annuncio pubblicato con GESTIONALEIMMOBILIARE.it.

Dettagli

  • ID Annuncio: 48838953
  • Prezzo: € 21.618
  • Superficie: 48 m²
  • Pubblicazione: 23/10/2025
  • Tipologia:
  • Locali: 1
  • Bagni: 1
  • Contratto:

Informazioni addizionali

  • Arredamento: Non Specificato
  • Riscaldamento: Non Specificato
  • Cucina: Cucina abitabile
  • Condizioni: Non Specificate

Efficienza Energetica

  • Classe Energetica: Non Comunicata
  • I.P.E.: 0.00 kWh/m2anno

Indirizzo Caricamento...