logo mondocasa

Capannone

€ 292.372

  • in Vendita
  • Mq.: 1.610

Descrizione

Quest’immobile viene venduto tramite asta online. Proprietà industriale in Abruzzo, a Oricola (AQ) , Loc. Le Campore snc. Questa esclusiva proprietà si trova in una zona industriale, precisamente in località “Castel Marcangeli” a “Molle Le Campore”, a soli 2,5 km dal confine tra Abruzzo e Lazio.

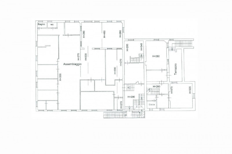
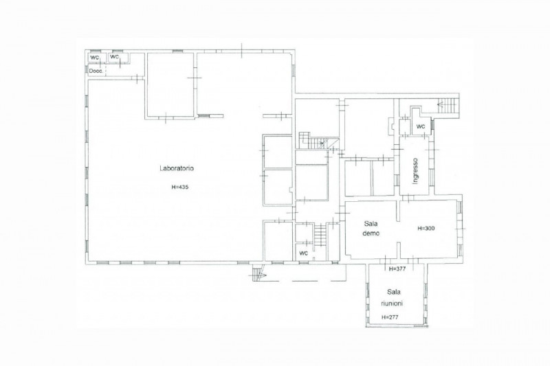
Si distingue per la sua posizione strategica, essendo facilmente visibile e accessibile dall’autostrada A24. Inoltre, si trova a breve distanza dall’uscita “Carsoli-Oricola”, rendendola facilmente raggiungibile. L’immobile è composto da un edificio principale che include un vecchio casale e un capannone industriale, un edificio accessorio/magazzino e una corte comune. Il casale originale è costruito in pietra e presenta una bella scala che aggiunge un tocco di eleganza alla facciata. Il capannone industriale, costruito in cemento armato, offre ampio spazio per varie attività industriali. All’interno del casale si trovano ampi locali utilizzati per uffici e servizi. Nel capannone industriale si trovano invece spazi per la produzione, laboratori e ulteriori uffici e servizi. Un’opportunità imperdibile per chi cerca un luogo ideale per avviare o espandere la propria attività industriale. La proprietà necessita di lavori di rinnovamento, che forniscono l’occasione per adattare lo spazio alle proprie esigenze. Per maggiori dettagli consultare i documenti allegati. Quimmo.it: iniziativa tech del Gruppo illimity specializzata nell’intermediazione digitale di beni immobili provenienti da tribunali, nuovi sviluppi immobiliari, financial institutions e libero mercato. Da oltre 10 anni Quimmo.it è il portale specializzato nella compravendita di immobili tramite asta giudiziaria. Il portale è infatti iscritto nel Registro Gestori della vendita telematica e nell’elenco dei siti web autorizzati allo svolgimento della pubblicità legale. Con Quimmo puoi scegliere tra migliaia di immobili di ogni tipo e partecipare alle aste online per acquistare la soluzione più adatta alle tue esigenze. Affidati all’esperienza decennale dei nostri esperti e richiedi l’assistenza gratuita per la presentazione e compilazione dell’offerta. Contattaci subito. --- annuncio pubblicato con GESTIONALEIMMOBILIARE.it.

Dettagli

  • ID Annuncio: 48838979
  • Prezzo: € 292.372
  • Superficie: 1.610 m²
  • Pubblicazione: 23/10/2025
  • Tipologia:
  • Contratto:

Informazioni addizionali

  • Arredamento: Non Specificato
  • Riscaldamento: Non Specificato
  • Cucina: Non Specificata
  • Condizioni: Da Ristrutturare

Efficienza Energetica

  • Classe Energetica: Non Comunicata
  • I.P.E.: 0.00 kWh/m3anno

Indirizzo Caricamento...