logo mondocasa

Ufficio

€ 40.031

  • in Vendita
  • Bagno: 1
  • Mq.: 116

Descrizione

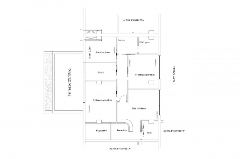
Quest’immobile viene venduto tramite asta online. Ufficio destinato a studio dentistico con garage sito a Gubbio (PG), in via Don Giuseppe Diana. I beni sono ricompresi all’interno di un complesso polifunzionale artigianale/direzionale/commerciale, sviluppato quattro piani fuori terra ed uno interrato, ubicato in zona a destinazione mista residenziale e commerciale, caratterizzata da elevata densità edilizia e buona dotazione di servizi pubblici ed infrastrutture, posta a breve distanza dal centro storico della città.

Il bene è posto al piano terzo ed ha accesso dal ballatoio comune del complesso, internamente è composto da sala d’attesa, reception, bagno, magazzino, corridoio, due sale operative, studio, locale sterilizzazione, bagno con spogliatoio e terrazzo. Completa la proprietà un garage allo stato grezzo posto al piano primo interrato. Sono inoltre compresi diritti proporzionali su beni comuni, rappresentati da parcheggio interrato, ballatoio e galleria. L’immobile risulta locato secondo regolare contratto d’affitto. Per maggiori informazioni vedasi documentazione allegata. Immobile descritto in Perizia allegata come “Lotto 11”. Offerta minima: 40031 EURO. Quimmo.it: iniziativa tech del Gruppo illimity specializzata nell’intermediazione digitale di beni immobili provenienti da tribunali, nuovi sviluppi immobiliari, financial institutions e libero mercato. Da oltre 10 anni Quimmo.it è il portale specializzato nella compravendita di immobili tramite asta giudiziaria. Il portale è infatti iscritto nel Registro Gestori della vendita telematica e nell’elenco dei siti web autorizzati allo svolgimento della pubblicità legale. Con Quimmo puoi scegliere tra migliaia di immobili di ogni tipo e partecipare alle aste online per acquistare la soluzione più adatta alle tue esigenze. Affidati all’esperienza decennale dei nostri esperti e richiedi l’assistenza gratuita per la presentazione e compilazione dell’offerta. Contattaci subito. --- annuncio pubblicato con GESTIONALEIMMOBILIARE.it.

Dettagli

  • ID Annuncio: 48839045
  • Prezzo: € 40.031
  • Superficie: 116 m²
  • Pubblicazione: 23/10/2025
  • Tipologia:
  • Bagni: 1
  • Contratto:

Informazioni addizionali

  • Arredamento: Non Specificato
  • Riscaldamento: Climatizzato
  • Cucina: Non Specificata
  • Condizioni: Non Specificate

Efficienza Energetica

  • Classe Energetica: Non Comunicata
  • I.P.E.: 0.00 kWh/m3anno

Indirizzo Caricamento...