logo mondocasa

Capannone

€ 151.500

  • in Vendita
  • Bagni: 3
  • Mq.: 3.282

Descrizione

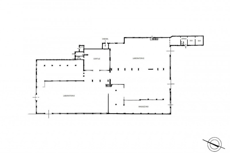
Quest’immobile viene venduto tramite asta online. Opificio, un tempo adibito alla lavorazione dei mobili in legno, con zona uffici al piano terra e zona espositiva al piano primo, sito in Valdastico (VI), Via Cerati, 25 (Via Dogana/Via Trento). Il fabbricato industriale si estende su un’area di terreno pertinenziale.

Ubicato in zona centrale, provvista di servizi di urbanizzazione primaria e secondaria. L’opificio è diviso in diverse sezioni, ciascuna delle quali dedicata alla lavorazione del legno. Sono altresì presenti alcuni locali magazzino, una centrale termica e una cabina elettrica. Esternamente è presente un cortile interno che si collega al blocco servizi igienici e spogliatoi. Il piano primo, costituito da una zona espositiva, è raggiungibile tramite un vano scala posizionato nella parte centrale del fabbricato industriale. Parte del terreno di pertinenza è costituito dal piazzale prospiciente il fabbricato industriale, dove è possibile parcheggiare. Il lotto non risulta essere recintato. Si segnala la presenza di amianto sulla copertura dell’edificio. L’opificio ricade in area di riqualificazione e riconversione e presenta difformità; il tutto risulta meglio specificato in perizia (pag 9, 12-13 e 16). Immobile libero, inutilizzato da tempo. I beni mobili presenti all’interno non sono oggetto della presente vendita. Per maggiori dettagli consultare i documenti allegati. Superfici Opificio 3.282 mq Part 833: 1.319 mq Part 1334: 100 mq Part 1191: 240 mq Part 1303: 120 mq Quimmo.it: iniziativa tech del Gruppo illimity specializzata nell’intermediazione digitale di beni immobili provenienti da tribunali, nuovi sviluppi immobiliari, financial institutions e libero mercato. Da oltre 10 anni Quimmo.it è il portale specializzato nella compravendita di immobili tramite asta giudiziaria. Il portale è infatti iscritto nel Registro Gestori della vendita telematica e nell’elenco dei siti web autorizzati allo svolgimento della pubblicità legale. Con Quimmo puoi scegliere tra migliaia di immobili di ogni tipo e partecipare alle aste online per acquistare la soluzione più adatta alle tue esigenze. Affidati all’esperienza decennale dei nostri esperti e richiedi l’assistenza gratuita per la presentazione e compilazione dell’offerta. Contattaci subito. --- annuncio pubblicato con GESTIONALEIMMOBILIARE.it.

Dettagli

  • ID Annuncio: 48839071
  • Prezzo: € 151.500
  • Superficie: 3.282 m²
  • Pubblicazione: 23/10/2025
  • Tipologia:
  • Bagni: 3
  • Contratto:

Informazioni addizionali

  • Arredamento: Non Specificato
  • Riscaldamento: Non Specificato
  • Cucina: Non Specificata
  • Condizioni: Da Ristrutturare

Efficienza Energetica

  • Classe Energetica: Non Comunicata
  • I.P.E.: 0.00 kWh/m3anno

Indirizzo Caricamento...