logo mondocasa

Attivita' Commerciale

€ 582.422

  • in Vendita
  • Bagni: 3
  • Mq.: 93

Descrizione

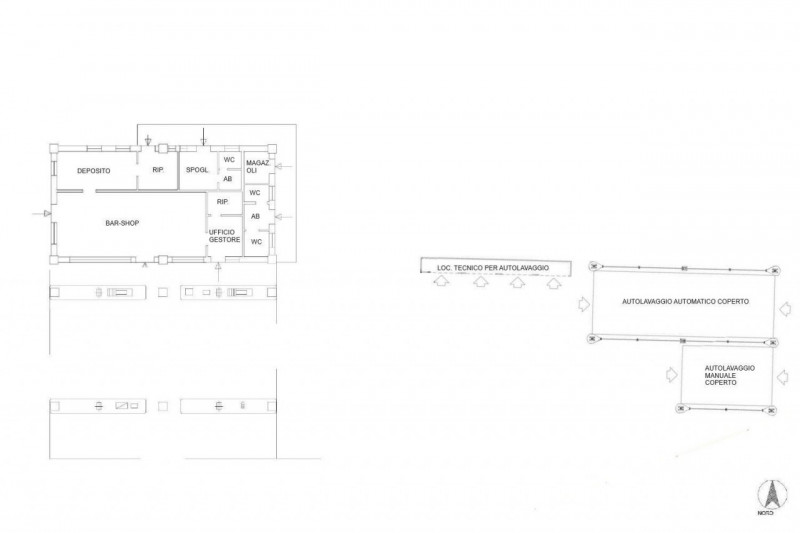
Quest’immobile viene venduto tramite asta online. Unità destinate al servizio di rifornimento carburanti con locali per attività accessorie e complementari, in Montefalco (PG), Loc. Cerrete, Via G.Marconi (già SP 445). STAZIONE DI RIFORNIMENTO CARBURANTI: n.

1 tettoia/pensilina con n.2 isole di erogazione carburanti (componente mobiliare estranea alla presente vendita), oltre ufficio gestore, ripostiglio, balcone dal quale è permesso l’accesso a 2 servizi igienici ad uso pubblico, magazzino oli, spogliatoio e servizio igienico ad uso esclusivo. UNITA’ DESTINATA A BAR, piano terra unico livello: bar-shop, deposito e ripostiglio. OFFICINA MECCANICA, piano primo sottostrada unico livello, accesso indipendente direttamente dal piazzale mediante rampa: officina, ufficio, bagno con antibagno. UNITA’ DESTINATA AD AUTOLAVAGGIO (limitatamente alla proprietà dell’area, in disponibilità superficiaria, sulla quale risulta edificato/istallato impianto di autolavaggio, inteso come componente mobiliare estranea al presente lotto): n.2 car wash tunnel di cui uno automatico e l’altro per il lavaggio manuale degli automezzi e locale tecnico. BENE COMUNE NON CENSIBILE: rateo di terreno di complessivi mq 3.468 circa a detrarre l’area di sedime dei fabbricati esistenti, nello specifico piazzale e rampa di accesso al piano primo sottostrada. Sono presenti difformità, meglio specificate in perizia (pag 31-35 a 37-52). I beni mobili presenti all’interno non sono oggetto della presente vendita. Per maggiori dettagli consultare i documenti allegati. Bene descritto in perizia come LOTTO n.2. Superfici commerciali: Stazione di servizio: 92,8 mq Bar 105,16 mq Officina 81,26 Autolavaggio 21,10 mq Piena proprietà di: Bar (CF): Fg 28 – Part 846 – Sub 3 - Cat C/1 Officina (CF): Fg 28 – Part 846 – Sub 4 - Cat C/3 Piazzale e rampa (CF): Fg 28 – Part 846 – Sub 5 - Cat BCNC Proprietà per l’area concedente: Stazione di rifornimento carburanti (CF): Fg 28 – Part 846 – Sub 2 – Cat E/3 Autolavaggio (CF): Fg 28 – Part 846 – Sub 6 – Cat D/8. Offerta minima: 582422 EURO. Quimmo.it: iniziativa tech del Gruppo illimity specializzata nell’intermediazione digitale di beni immobili provenienti da tribunali, nuovi sviluppi immobiliari, financial institutions e libero mercato. Da oltre 10 anni Quimmo.it è il portale specializzato nella compravendita di immobili tramite asta giudiziaria. Il portale è in....

Dettagli

  • ID Annuncio: 48839270
  • Prezzo: € 582.422
  • Superficie: 93 m²
  • Pubblicazione: 24/10/2025
  • Tipologia:
  • Bagni: 3
  • Contratto:

Informazioni addizionali

  • Arredamento: Non Specificato
  • Riscaldamento: Non Specificato
  • Cucina: Non Specificata
  • Condizioni: Non Specificate

Efficienza Energetica

  • Classe Energetica: Non Comunicata
  • I.P.E.: 0.00 kWh/m3anno

Indirizzo Caricamento...