logo mondocasa
  • in Vendita
  • Mq.: 495

Descrizione

Quest’immobile viene venduto tramite asta online. Proprietà superficiaria di porzione di opificio e quota di proprietà superficiaria di lastrico solare, siti in Monte San Giusto (MC), via G. La Pira 5. Ubicato in un’area a destinazione artigianale a circa 1500 m dal centro città.

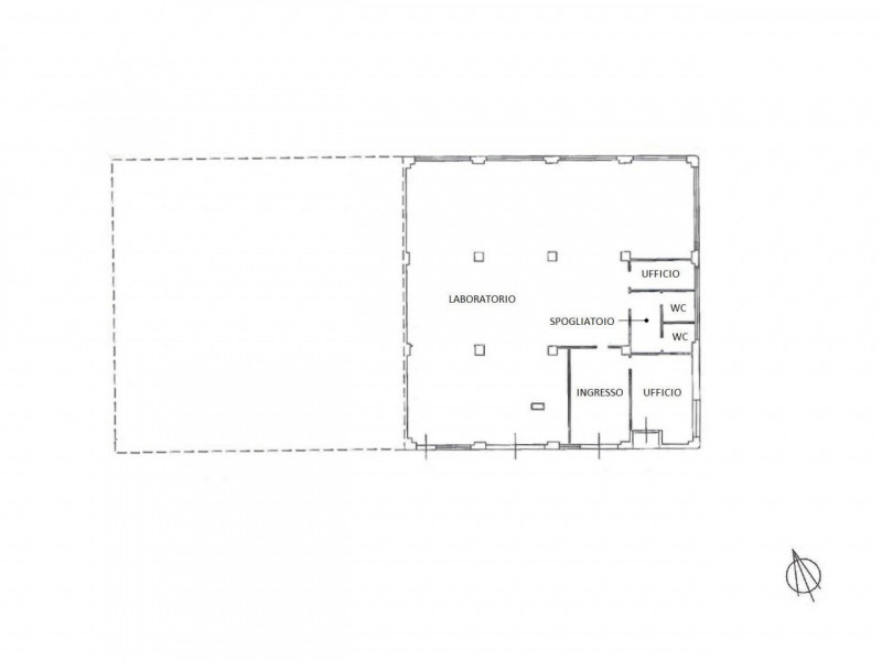
Porzione sita al piano primo di un edificio a destinazione produttiva, diviso in 4 subalterni distribuiti su due piani, oltre ad altri due che costituiscono il lastrico solare di copertura. Presente una corte che circonda l’intero edificio, bene comune a tutti i subalterni presenti. Una rampa di accesso esterna carrabile porta direttamente al piano primo del fabbricato, ed entrando nella prima o nella seconda porta a destra, si accede alla porzione Sub 7. L’interno presenta pavimenti in quarzo per l’area destinata all’attività compreso l’ingresso, mentre per l’ufficio ed i servizi igienici sono in mattonelle. Finestre a nastro in alluminio con doppi vetri nell’ufficio, singoli nell’area artigianale. Le porte, sia quelle di dimensioni utili al carico-scarico merci, sia quella pedonale dalla quale si accede direttamente all’ufficio, sono in ferro. Presenti impianto elettrico, idrosanitario e di riscaldamento che risulta a radiatori con due caldaie esterne. Costruzione ben conservata, risulta locata. Sono presenti difformità sanabili, meglio specificate in perizia (pag 2-3). I beni mobili presenti all’interno non sono oggetto della presente vendita. Per maggiori informazioni consultare la documentazione allegata. Superficie commerciale totale 495 mq Sub 7 399 mq Sub 8 400 mq Sub 9 400 mq Proprietà superficiaria di: Opificio (CF): Foglio 17 - Particella 624 - Subalterno 7 - Cat D/1 Quota di 250/1000 di proprietà superficiaria di: Lastrico solare (CF): Foglio 17 - Particella 624 - Subalterni 8, 9 - Cat F/5 Quimmo.it: iniziativa tech del Gruppo illimity specializzata nell’intermediazione digitale di beni immobili provenienti da tribunali, nuovi sviluppi immobiliari, financial institutions e libero mercato. Da oltre 10 anni Quimmo.it è il portale specializzato nella compravendita di immobili tramite asta giudiziaria. Il portale è infatti iscritto nel Registro Gestori della vendita telematica e nell’elenco dei siti web autorizzati allo svolgimento della pubblicità legale. Con Quimmo puoi scegliere tra migliaia di immobili di ogni tipo e partecipare alle aste online per acquistare la sol....

Dettagli

  • ID Annuncio: 48839435
  • Prezzo: € 118.379
  • Superficie: 495 m²
  • Pubblicazione: 24/10/2025
  • Tipologia:
  • Contratto:

Informazioni addizionali

  • Arredamento: Non Specificato
  • Riscaldamento: Non Specificato
  • Cucina: Non Specificata
  • Condizioni: Buono Stato

Efficienza Energetica

  • Classe Energetica: Non Comunicata
  • I.P.E.: 0.00 kWh/m3anno

Indirizzo Caricamento...