logo mondocasa

Negozio

€ 24.800

  • in Vendita
  • Mq.: 83

Descrizione

Quest’immobile viene venduto tramite asta online. Locale commerciale al piano terra, sito a Palermo (PA), Via Colonna Rotta 239-241. L’immobile è ubicato in una zona centrale e fa parte della IV Circoscrizione. L’area, di rilevante importanza storica, era già utilizzata ai tempi della fondazione della città da parte dei Fenici, infatti è presente una vasta necropoli non ancora del tutto scoperta.

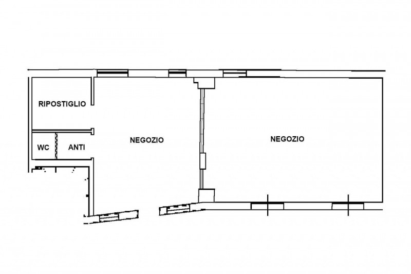
L’unità a destinata a negozio fa parte di una palazzina a due livelli fuori terra. Trattasi di un ampio locale con accesso indipendente dalla pubblica via. Internamente è composto da un unico ambiente diviso da una struttura vetrata, da un servizio igienico ed un ripostiglio. I pavimenti sono in gres, i rivestimenti in ceramica, le pareti sono intonacate al civile e gli infissi sono dotati di vetrocamera. Nel complesso l’immobile si presenta in buono stato di conservazione e risulta libero. Sono compresi nella vendita i proporzionali diritti di comproprietà su beni comuni e spazi di uso comune. PER MAGGIORI DETTAGLI CONSULTARE I DOCUMENTI ALLEGATI. Bene descritto in perizia al cap.3 Superficie commerciale totale: 83 mq Piena proprietà di: Negozio (CF): Foglio 56 - Particella 1611 - Subalterno 13 (graff. alla Pc 396 Sub 2) - Cat C/1 . Offerta minima: 24800 EURO. Quimmo.it: iniziativa tech del Gruppo illimity specializzata nell’intermediazione digitale di beni immobili provenienti da tribunali, nuovi sviluppi immobiliari, financial institutions e libero mercato. Da oltre 10 anni Quimmo.it è il portale specializzato nella compravendita di immobili tramite asta giudiziaria. Il portale è infatti iscritto nel Registro Gestori della vendita telematica e nell’elenco dei siti web autorizzati allo svolgimento della pubblicità legale. Con Quimmo puoi scegliere tra migliaia di immobili di ogni tipo e partecipare alle aste online per acquistare la soluzione più adatta alle tue esigenze. Affidati all’esperienza decennale dei nostri esperti e richiedi l’assistenza gratuita per la presentazione e compilazione dell’offerta. Contattaci subito. --- annuncio pubblicato con GESTIONALEIMMOBILIARE.it.

Dettagli

  • ID Annuncio: 48839439
  • Prezzo: € 24.800
  • Superficie: 83 m²
  • Pubblicazione: 24/10/2025
  • Tipologia:
  • Contratto:

Informazioni addizionali

  • Arredamento: Non Specificato
  • Riscaldamento: Climatizzato
  • Cucina: Non Specificata
  • Condizioni: Buono Stato

Efficienza Energetica

  • Classe Energetica: Non Comunicata
  • I.P.E.: 0.00 kWh/m3anno

Indirizzo Caricamento...