logo mondocasa

Terreno

€ 66.937

  • in Vendita
  • Mq.: 2.255

Descrizione

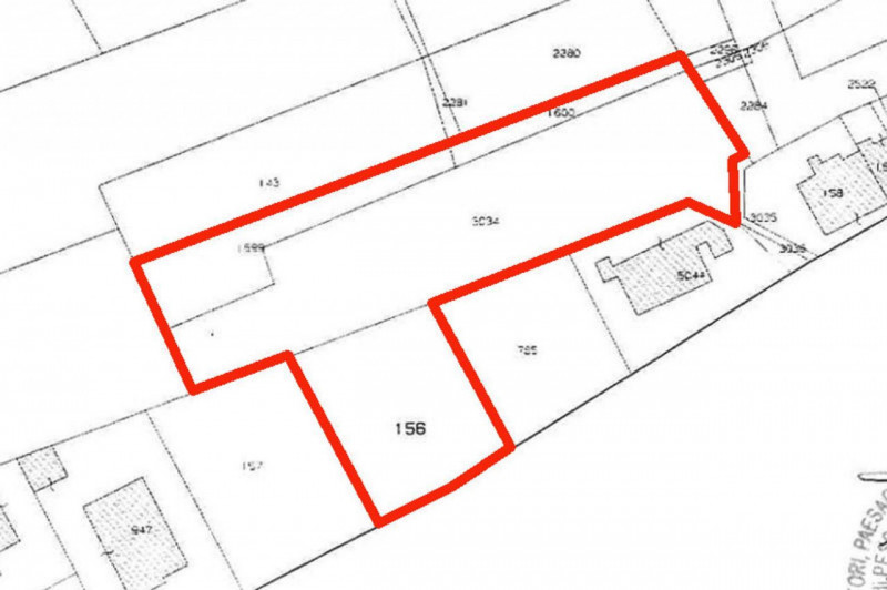
Quest’immobile viene venduto tramite asta online. Oggetto della presente vendita è un terreno. L'unità immobiliare si trova a Pescara (PE), ubicata in località Colli, con accesso posto su Salita Cellini. Il contesto è di prima periferia, tranquillo e poco trafficato.

La zona è urbanizzata, ben servita e caratterizzata da edifici residenziali e attività commerciali. Il lotto copre una superficie catastale di 2255 mq, direttamente accessibile dalla strada. L’area ha forma irregolare, giacitura in pendenza, ed è parzialmente recintata con muretti e rete metallica. Il terreno ricade in Sottozona B7 di trasformazione integrale, all'interno di un comparto edificatorio la cui attuazione è subordinata alla redazione di un piano particolareggiato di iniziativa privata. Il terreno è attualmente incolto con alberi e arbusti. L’immobile è libero e si trova in discreto stato di manutenzione e di conservazione. Terreno (CT): Foglio 8 – Particelle 156, 1599, 1600 e 3034 Offerta minima: 66937 EURO. Quimmo.it: iniziativa tech del Gruppo illimity specializzata nell’intermediazione digitale di beni immobili provenienti da tribunali, nuovi sviluppi immobiliari, financial institutions e libero mercato. Da oltre 10 anni Quimmo.it è il portale specializzato nella compravendita di immobili tramite asta giudiziaria. Il portale è infatti iscritto nel Registro Gestori della vendita telematica e nell’elenco dei siti web autorizzati allo svolgimento della pubblicità legale. Con Quimmo puoi scegliere tra migliaia di immobili di ogni tipo e partecipare alle aste online per acquistare la soluzione più adatta alle tue esigenze. Affidati all’esperienza decennale dei nostri esperti e richiedi l’assistenza gratuita per la presentazione e compilazione dell’offerta. Contattaci subito. --- annuncio pubblicato con GESTIONALEIMMOBILIARE.it.

Dettagli

  • ID Annuncio: 48840047
  • Prezzo: € 66.937
  • Superficie: 2.255 m²
  • Pubblicazione: 24/10/2025
  • Tipologia:
  • Contratto:

Informazioni addizionali

  • Arredamento: Non Specificato
  • Riscaldamento: Non Specificato
  • Cucina: Non Specificata
  • Condizioni: Non Specificate

Efficienza Energetica

  • Classe Energetica: Non Comunicata
  • I.P.E.: 0.00 kWh/m2anno

Indirizzo Caricamento...