logo mondocasa

Capannone

€ 248.917

  • in Vendita
  • Bagno: 1
  • Mq.: 495

Descrizione

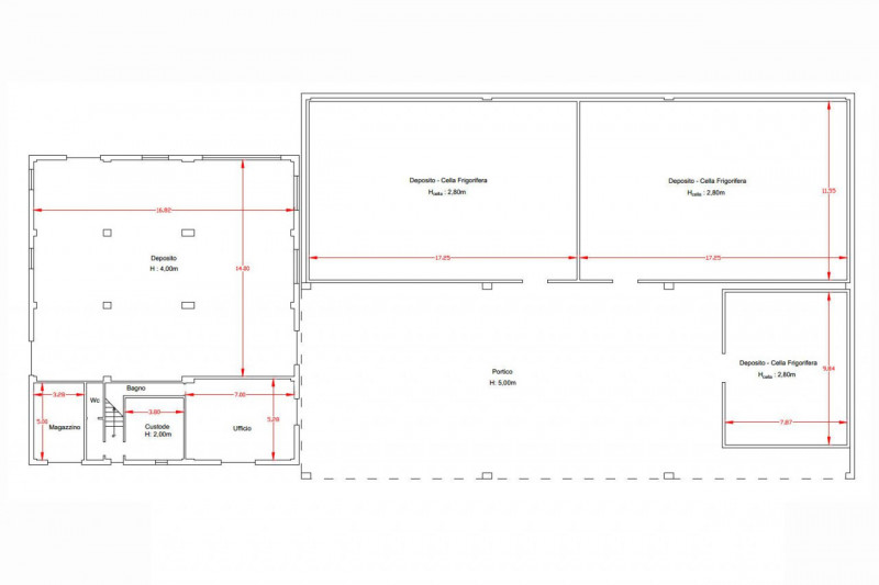
Quest’immobile viene venduto tramite asta online. Capannone Industriale a Scalea (CS), Via Lavinium 3. Questa proprietà comprende un capannone industriale su un terreno di circa 2.480 mq. La struttura include un'area coperta di circa 900 mq, con tre depositi/celle frigorifere di 480 mq, locali deposito di 240 mq e uffici di 95 mq.

Ideale per attività produttive o logistiche, il capannone è ben collegato ai principali snodi viari. Sebbene necessiti di interventi di manutenzione e sanatoria edilizia e catastale, l'immobile offre ampi spazi e versatilità per diverse tipologie di attività commerciali. Per maggiori dettagli consultare i documenti allegati. Bene descritto in perizia come LOTTO DUE. Sono compresi nella vendita i proporzionali diritti di comproprietà su beni comuni e spazi di uso comune. Offerta minima: 248917 EURO. Quimmo.it: iniziativa tech del Gruppo illimity specializzata nell’intermediazione digitale di beni immobili provenienti da tribunali, nuovi sviluppi immobiliari, financial institutions e libero mercato. Da oltre 10 anni Quimmo.it è il portale specializzato nella compravendita di immobili tramite asta giudiziaria. Il portale è infatti iscritto nel Registro Gestori della vendita telematica e nell’elenco dei siti web autorizzati allo svolgimento della pubblicità legale. Con Quimmo puoi scegliere tra migliaia di immobili di ogni tipo e partecipare alle aste online per acquistare la soluzione più adatta alle tue esigenze. Affidati all’esperienza decennale dei nostri esperti e richiedi l’assistenza gratuita per la presentazione e compilazione dell’offerta. Contattaci subito. --- annuncio pubblicato con GESTIONALEIMMOBILIARE.it.

Dettagli

  • ID Annuncio: 48911229
  • Prezzo: € 248.917
  • Superficie: 495 m²
  • Pubblicazione: 24/10/2025
  • Tipologia:
  • Bagni: 1
  • Contratto:

Informazioni addizionali

  • Arredamento: Non Specificato
  • Riscaldamento: Non Specificato
  • Cucina: Non Specificata
  • Condizioni: Da Ristrutturare

Efficienza Energetica

  • Classe Energetica: Non Comunicata
  • I.P.E.: 0.00 kWh/m3anno

Indirizzo Caricamento...