logo mondocasa

Appartamento

€ 339.000

  • in Vendita
  • Locali: 3
  • Bagno: 1
  • Mq.: 86

Descrizione

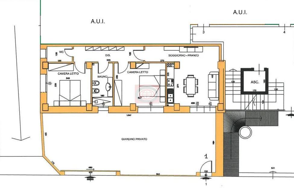
BELLARIA (TC1060a1): in zona centrale, vicino al mare e a due passi dall'Isola dei platani, il viale principale di Bellaria, considerato una delle più belle "passeggiate" della Riviera, in contesto di 35 unità di prossima realizzazione, proponiamo appartamento trilocale posto al piano terra con ingresso indipendente, zona giorno con cucina a vista, 2 camere da letto matrimoniali, 1 bagno e giardino privato di 74 mq.

L'immobile verrà realizzato con FINITURE DI PREGIO e CARATTERISTICHE DI ALTO RISPARMIO ENERGETICO ed ECOSOSTENIBILITA'. Saranno in classe energetica "A", dotati di moderne tecnologie di isolamento, infissi in PVC con predisposizione ventilazione meccanica e vetri termo/acustico, impianto di riscaldamento e raffrescamento con pompa di calore, impianto fotovoltaico e gas free per la sostenibilità ambientale. Possibilità di acquistare a parte il garage, nel piano interrato, (€ 30.000) e /o un posto auto esterno (€ 10.000). N.B. Le presenti informazioni non costituiscono elemento contrattuale..

Dettagli

  • ID Annuncio: 48917329
  • Prezzo: € 339.000
  • Superficie: 86 m²
  • Pubblicazione: 30/04/2025
  • Tipologia:
  • Locali: 3
  • Bagni: 1
  • Contratto:

Informazioni addizionali

  • Arredamento: Vuoto
  • Riscaldamento: Non Specificato
  • Cucina: Angolo cottura
  • Condizioni: Non Specificate

Efficienza Energetica

  • Classe Energetica:
  • I.P.E.: 0