logo mondocasa

Ufficio

€ 485.000

  • in Vendita
  • Bagni: 2
  • Mq.: 233

Descrizione

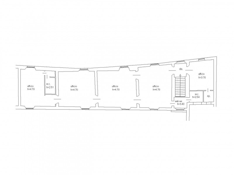
Quest’immobile viene venduto tramite asta online. SCHEDA IN ALLESTIMENTO. PER MAGGIORI DETTAGLI CONSULTARE LA PERIZIA Immobile descritto nella perizia qui allegata come LOTTO DI VENDITA 1 Ufficio e box auto siti a Jesi (AN), via XV Settembre 16. Zona centro storico, all’interno di Palazzo Bettini (ex Palazzo Camerata).

Edificio oggetto di integrale ristrutturazione a partire dalla metà degli anni novanta fino al 2003. L’ufficio si trova al piano primo, servito da ampia scalinata centrale. E’ costituito da cinque locali direzionali e due bagni di cui uno con antibagno. Finiture di pregio. Riscaldamento autonomo con caldaia e radiatori. Box auto singolo nella autorimessa interrata sotto Corte Bettini, accessibile da via Mura Orientali. Condizioni ottime. Superficie commerciale: 233,35 mq LOTTO DI VENDITA 1 Ufficio piano primo: 258 mq Box auto piano interrato: 17 mq Piena proprietà di (CF): Foglio 68 – Particella 706 – Subalterno 68 – A/10 (CF): Foglio 68 – Particella 706 – Subalterno 47 – C/6 Quimmo.it: iniziativa tech del Gruppo illimity specializzata nell’intermediazione digitale di beni immobili provenienti da tribunali, nuovi sviluppi immobiliari, financial institutions e libero mercato. Da oltre 10 anni Quimmo.it è il portale specializzato nella compravendita di immobili tramite asta giudiziaria. Il portale è infatti iscritto nel Registro Gestori della vendita telematica e nell’elenco dei siti web autorizzati allo svolgimento della pubblicità legale. Con Quimmo puoi scegliere tra migliaia di immobili di ogni tipo e partecipare alle aste online per acquistare la soluzione più adatta alle tue esigenze. Affidati all’esperienza decennale dei nostri esperti e richiedi l’assistenza gratuita per la presentazione e compilazione dell’offerta. Contattaci subito. --- annuncio pubblicato con GESTIONALEIMMOBILIARE.it.

Dettagli

  • ID Annuncio: 48976632
  • Prezzo: € 485.000
  • Superficie: 233 m²
  • Pubblicazione: 24/10/2025
  • Tipologia:
  • Bagni: 2
  • Contratto:

Informazioni addizionali

  • Arredamento: Non Specificato
  • Riscaldamento: Non Specificato
  • Cucina: Non Specificata
  • Condizioni: Ottimo Stato

Efficienza Energetica

  • Classe Energetica: Non Comunicata
  • I.P.E.: 0.00 kWh/m3anno

Indirizzo Caricamento...