logo mondocasa

Capannone

€ 2.800.000

  • in Vendita
  • Mq: 3.000

Descrizione

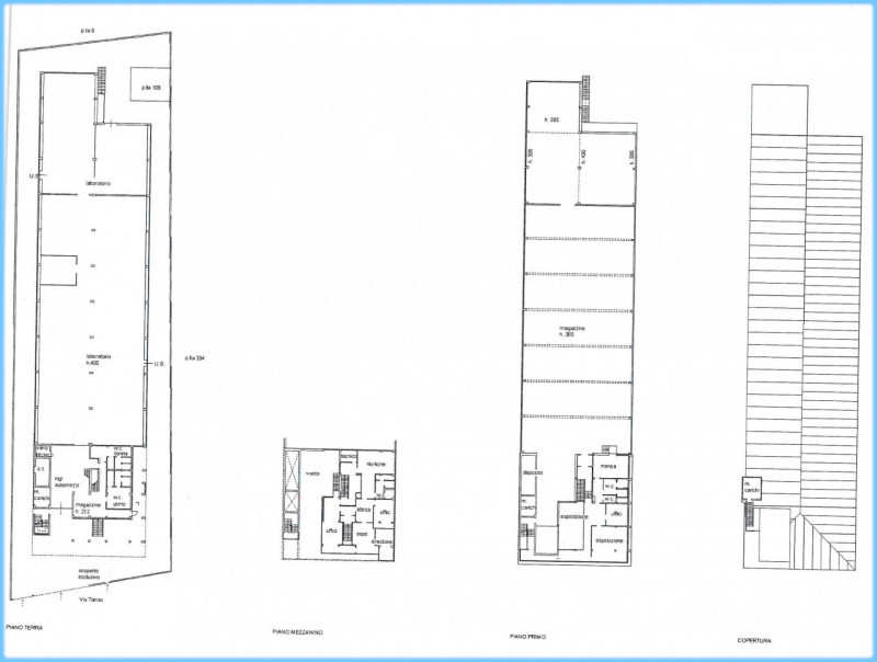
NOSTRO RIF. CP-190 Mestre, via Torino - Nostra Esclusiva. Proponiamo in vendita CAPANNONE D/7 DI 3000 mq sito in via Torino a Mestre. L'immobile è dotato di scoperto privato per il passaggio attorno al capannone. CPI in corso di validità. 800. 000. it.

Il capannone è suddiviso in: 350 mq di uffici di rappresentanza 1350 mq di capannone al piano terra con altezza di 4 metri 1350 mq di capannone al piano primo con altezza di 3 metri con montacarichi. Disponibilità di parcheggi per i dipendenti. Prezzo richiesto € 2. classe energetica APE in fase di definizione. ATTENZIONE LA POSIZIONE E' CASUALE --- annuncio pubblicato con GESTIONALEIMMOBILIARE.

Dettagli

  • ID Annuncio: 49009444
  • Prezzo: € 2.800.000
  • Superficie: 3.000 m²
  • Pubblicazione: 21/11/2025
  • Tipologia:
  • Contratto:

Informazioni aggiuntive

  • Arredamento: Non Specificato
  • Riscaldamento: Non Specificato
  • Cucina: Non Specificata
  • Condizioni: Non Specificate

Efficienza Energetica

  • Classe Energetica: Non Comunicata
  • I.P.E.: 0.00 kWh/m3anno

Indirizzo Caricamento...