logo mondocasa

Rustico

€ 81.000

  • in Vendita
  • Locali: 1
  • Bagno: 1
  • Mq.: 427

Descrizione

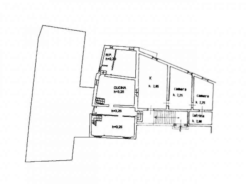
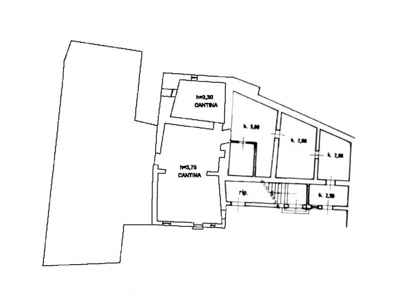
Quest’immobile viene venduto tramite asta online. Complesso colonico da riqualificare sito a Montalcino (SI), in località Vergelle. Il fabbricato, di origine colonica e immerso nelle colline senesi, si sviluppa su tre livelli oltre resede e terreni agricoli pertinenziali.

I lavori di ristrutturazione, avviati ma mai completati, hanno lasciato l’immobile allo stato grezzo, offrendo la possibilità di personalizzare completamente gli spazi. La posizione panoramica, la vicinanza a strutture ricettive e la vocazione turistica dell’area rendono questo immobile ideale per la realizzazione di un agriturismo, una residenza di charme o un’attività ricettiva. Per maggiori informazioni vedasi documentazione allegata. Immobile descritto in Perizia allegata come “Lotto 4”. Offerta minima: 81000 EURO. Quimmo.it: iniziativa tech del Gruppo illimity specializzata nell’intermediazione digitale di beni immobili provenienti da tribunali, nuovi sviluppi immobiliari, financial institutions e libero mercato. Da oltre 10 anni Quimmo.it è il portale specializzato nella compravendita di immobili tramite asta giudiziaria. Il portale è infatti iscritto nel Registro Gestori della vendita telematica e nell’elenco dei siti web autorizzati allo svolgimento della pubblicità legale. Con Quimmo puoi scegliere tra migliaia di immobili di ogni tipo e partecipare alle aste online per acquistare la soluzione più adatta alle tue esigenze. Affidati all’esperienza decennale dei nostri esperti e richiedi l’assistenza gratuita per la presentazione e compilazione dell’offerta. Contattaci subito. --- annuncio pubblicato con GESTIONALEIMMOBILIARE.it.

Dettagli

  • ID Annuncio: 49048601
  • Prezzo: € 81.000
  • Superficie: 427 m²
  • Pubblicazione: 24/10/2025
  • Tipologia:
  • Locali: 1
  • Bagni: 1
  • Contratto:

Informazioni addizionali

  • Arredamento: Non Specificato
  • Riscaldamento: Non Specificato
  • Cucina: Non Specificata
  • Condizioni: Da Ristrutturare

Efficienza Energetica

  • Classe Energetica: Non Comunicata
  • I.P.E.: 0.00 kWh/m2anno

Indirizzo Caricamento...