logo mondocasa
Trentino Alto Adige - Provincia di Bolzano - Laives

Appartamento

€ 550.000

  • in Vendita
  • Locali: 2
  • Bagno: 1
  • Mq: 115

Descrizione

Pineta: In zona interna e tranquilla, vi presentiamo questo moderno edificio di nuova costruzione con solo tre appartamenti, certificato secondo lo standard CasaClima A, che garantisce un elevato comfort abitativo e bassi consumi energetici. 000 €. it.

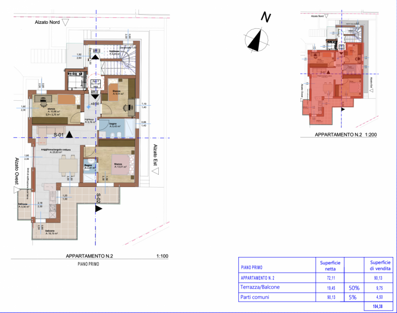
Tutte le unità si distinguono per la generosa metratura degli spazi esterni, l’alto livello di comfort e le moderne dotazioni. La consegna degli appartamenti, chiavi in mano, è prevista per la fine del 2026, offrendo ampio margine di tempo per pianificare il trasloco. Potrete godere del privilegio di un ascensore, che vi condurrà agevolmente a ogni piano, rendendo la vostra routine quotidiana più efficiente e senza sforzo. L'appartamento n. 3 qui proposto si trova al secondo piano ed è composto da: ingresso, soggiorno/cucina con uscita sulla terrazza, una camera matrimoniale con uscita sul balcone, camera singola e un bagno finestrato. Nel prezzo è inclusa una cantina. Posti auto coperti disponibili a partire da 25. Garage a partire da 45. 000€ convenzionato: si superficie commerciale: 115mq superficie calpestabile: 77mq consegna: fine 2025 riscaldamento: centralizzato a pavimento a gas con sostegno di una pompa di calore e impianto fotovoltaico classe energetica: A - IPE 25 KWH/m²/anno (efficienza involucro) - 9 kg CO2/m²/anno (efficienza complessiva) --- annuncio pubblicato con GESTIONALEIMMOBILIARE.

Dettagli

  • ID Annuncio: 49064123
  • Prezzo: € 550.000
  • Superficie: 115 m²
  • Pubblicazione: 13/10/2025
  • Tipologia:
  • Locali: 2
  • Bagni: 1
  • Contratto:

Informazioni aggiuntive

  • Arredamento: Non Specificato
  • Riscaldamento: Non Specificato
  • Cucina: Non Specificata
  • Condizioni: Nuovo

Efficienza Energetica

  • Classe Energetica: Non Comunicata
  • I.P.E.: 0.00 kWh/m2anno

Indirizzo Caricamento...