logo mondocasa

Negozio

€ 489.375

  • in Vendita
  • Mq.: 524

Descrizione

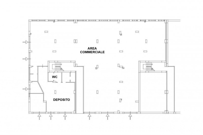
Quest’immobile viene venduto tramite asta online. Negozio sito a Patti (ME), corso Giacomo Matteotti 124/D. Il contesto è semicentrale con traffico regolare. La zona è urbanizzata, dotata di ogni servizio e caratterizzata da palazzine residenziali, negozi e parcheggi.

L’area è ben collegata al centro del paese, al mare e alla rete infrastrutturale in direzione dei maggiori centri urbani. Trattasi di ampio locale commerciale al piano terra del condominio For You, con accesso da vetrine su cortile condominiale adibito a parcheggio. Composto da area vendite, servizi igienici, deposito merci, vani tecnici e per macchine. Climatizzazione autonoma. Presenti difformità da sanare. Agibilità rilasciata. Classe energetica E. Condizioni buone. Beni mobili esclusi dalla vendita. Superficie: 524 mq (fonte: certificato APE) Per maggiori dettagli consultare i dati tecnici allegati Piena proprietà di: CF: Foglio 8 – Particella 379 – Subalterno 23 – D/8 Offerta minima: 489375 EURO. Quimmo.it: iniziativa tech del Gruppo illimity specializzata nell’intermediazione digitale di beni immobili provenienti da tribunali, nuovi sviluppi immobiliari, financial institutions e libero mercato. Da oltre 10 anni Quimmo.it è il portale specializzato nella compravendita di immobili tramite asta giudiziaria. Il portale è infatti iscritto nel Registro Gestori della vendita telematica e nell’elenco dei siti web autorizzati allo svolgimento della pubblicità legale. Con Quimmo puoi scegliere tra migliaia di immobili di ogni tipo e partecipare alle aste online per acquistare la soluzione più adatta alle tue esigenze. Affidati all’esperienza decennale dei nostri esperti e richiedi l’assistenza gratuita per la presentazione e compilazione dell’offerta. Contattaci subito. --- annuncio pubblicato con GESTIONALEIMMOBILIARE.it.

Dettagli

  • ID Annuncio: 49086523
  • Prezzo: € 489.375
  • Superficie: 524 m²
  • Pubblicazione: 22/10/2025
  • Tipologia:
  • Contratto:

Informazioni addizionali

  • Arredamento: Non Specificato
  • Riscaldamento: Non Specificato
  • Cucina: Non Specificata
  • Condizioni: Buono Stato

Efficienza Energetica

  • Classe Energetica:
  • I.P.E.: 0.00 kWh/m3anno

Indirizzo Caricamento...