logo mondocasa

Indipendente

€ 250.000

  • in Vendita
  • Locali: 12
  • Bagni: 2
  • Mq.: 290

Descrizione

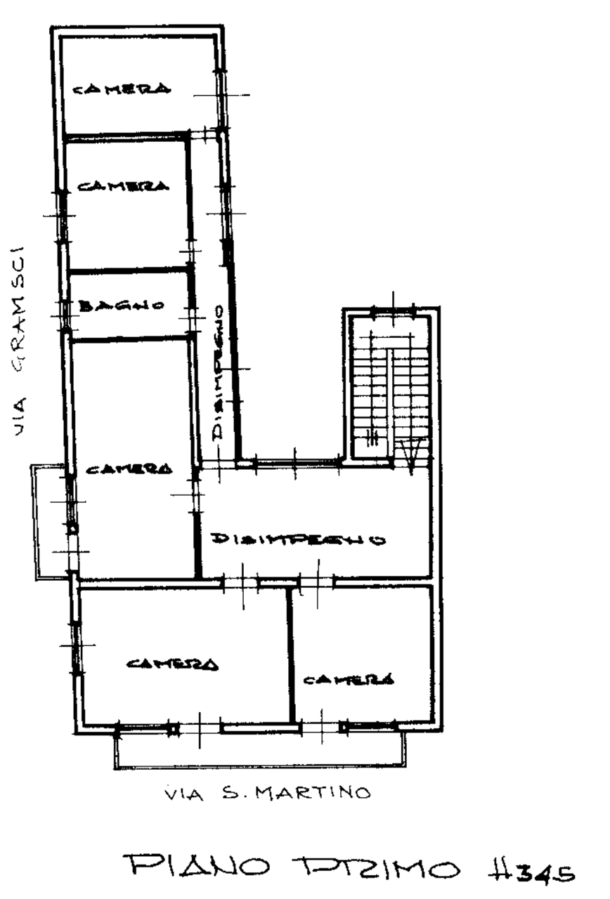
Selargius, in posizione strategica proponiamo in vendita luminosa casa singola articolata al piano terra e piano primo. Al piano terra troviamo un accesso pedonale ed un accesso carrabile, ingresso cucina, camera, salone doppio, bagno e cortile, tramite una scala interna ed una esterna accediamo al piano primo dove troviamo la zona notte composta da ampio disimpegno, 4 spaziose camere da letto e bagno.

Immobile non mutuabile facilmente frazionabile in due unità abitative. Classe Energertica G Ipe 180 kwh/m2a Sardinia Real Estate Tel. 3298862767 Via Mandas 2 - 09044 - Quartucciu (CA) CLASSE ENERGETICA: G 180 kWh/m2 a.

Dettagli

  • ID Annuncio: 49093321
  • Prezzo: € 250.000
  • Superficie: 290 m²
  • Pubblicazione: 16/06/2025
  • Tipologia:
  • Locali: 12
  • Bagni: 2
  • Contratto:

Informazioni addizionali

  • Arredamento: Vuoto
  • Riscaldamento: Non Presente
  • Cucina: Cucina abitabile
  • Condizioni: Buono Stato

Efficienza Energetica

  • Classe Energetica:
  • I.P.E.: 180 kWh/m2anno

Indirizzo Caricamento...