logo mondocasa
  • in Vendita
  • Bagno: 1
  • Mq.: 142

Descrizione

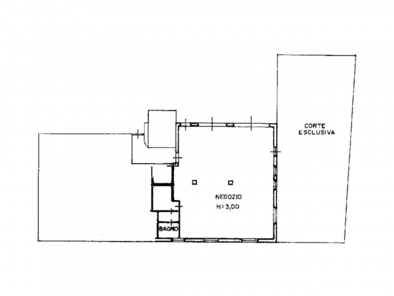
Quest’immobile viene venduto tramite asta online. Locale commerciale con corte esclusiva sito a Monte San Vito (AN), in via Selva. Il negozio è posto al piano terra di una palazzina di quattro piani fuori terra oltre ad uno interrato, ubicata in zona residenziale ben servita e a vocazione mista.

Il bene è composto da un ampio locale, oltre servizi igienici e si presenta in buone condizioni manutentive, è attualmente locato con contratto commerciale attivo fino al 2028. Per maggiori informazioni vedasi documentazione allegata. Immobile descritto in Perizia allegata come “Lotto 1”. Offerta minima: 49725 EURO. Quimmo.it: iniziativa tech del Gruppo illimity specializzata nell’intermediazione digitale di beni immobili provenienti da tribunali, nuovi sviluppi immobiliari, financial institutions e libero mercato. Da oltre 10 anni Quimmo.it è il portale specializzato nella compravendita di immobili tramite asta giudiziaria. Il portale è infatti iscritto nel Registro Gestori della vendita telematica e nell’elenco dei siti web autorizzati allo svolgimento della pubblicità legale. Con Quimmo puoi scegliere tra migliaia di immobili di ogni tipo e partecipare alle aste online per acquistare la soluzione più adatta alle tue esigenze. Affidati all’esperienza decennale dei nostri esperti e richiedi l’assistenza gratuita per la presentazione e compilazione dell’offerta. Contattaci subito. --- annuncio pubblicato con GESTIONALEIMMOBILIARE.it.

Dettagli

  • ID Annuncio: 49098213
  • Prezzo: € 49.725
  • Superficie: 142 m²
  • Pubblicazione: 22/10/2025
  • Tipologia:
  • Bagni: 1
  • Contratto:

Informazioni addizionali

  • Arredamento: Non Specificato
  • Riscaldamento: Climatizzato
  • Cucina: Non Specificata
  • Condizioni: Non Specificate

Efficienza Energetica

  • Classe Energetica: Non Comunicata
  • I.P.E.: 0.00 kWh/m3anno

Indirizzo Caricamento...