logo mondocasa

Ufficio

€ 750

  • in Affitto
  • Bagni: 2
  • Mq.: 105

Descrizione

La Pronto Casa Group propone in locazione, ufficio al piano terra con ampie vetrine e doppio ingresso su due strade, in zona strategica e ben servita, a pochi passi da via Archimede. L’immobile, di circa 100 mq, è ideale per studi medici, estetici, direzionali, professionisti, coworking o piccole realtà aziendali che desiderano uno spazio funzionale.

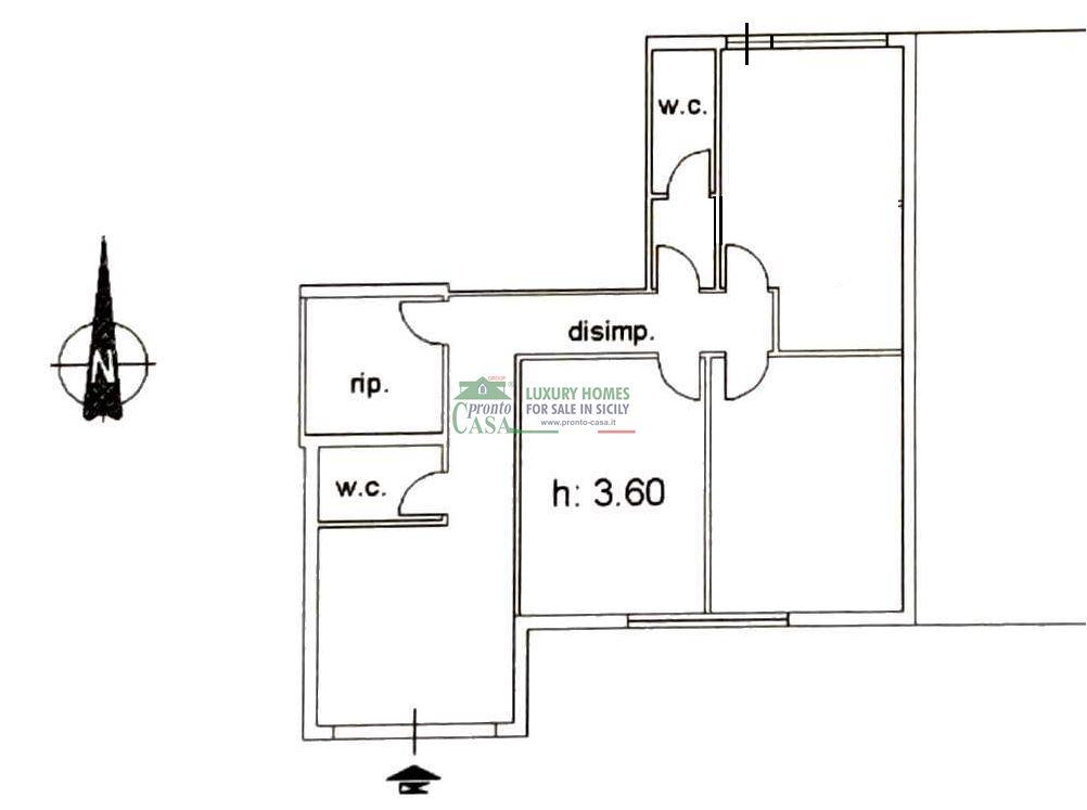
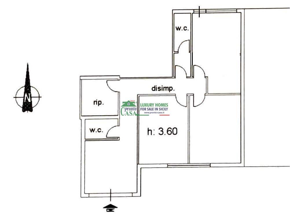
CARATTERISTICHE PRINCIPALI: La superficie è ben distribuita e si compone in: - Sala ingresso per area di accoglienza o sala d'attesa clienti, di circa 14 mq - Tre stanze ufficio/studio privato di circa 18 mq ciascuna - Due Servizi, uno con antibagno ed uno per disabili - Ripostiglio/Magazzino DOTAZIONI E PERTINENZE: - Predisposizione per impianto climatico - Ottima esposizione e luminosità Non arredato. L’ufficio si presta a molteplici soluzioni lavorative ed è perfetto per chi cerca uno spazio professionale riservato, strategicamente posizionato e dotato di comfort. Per ulteriori informazioni contattare la filiale Pronto Casa Group - Point 3 via Carducci 207 Ragusa, al numero 0932/1885279. oppure visita il nostro sito..

Dettagli

  • ID Annuncio: 49099038
  • Prezzo: € 750
  • Superficie: 105 m²
  • Pubblicazione: 17/07/2025
  • Tipologia:
  • Bagni: 2
  • Contratto:

Informazioni addizionali

  • Arredamento: Vuoto
  • Riscaldamento: Non Specificato
  • Cucina: Non Specificata
  • Condizioni: Buono Stato

Efficienza Energetica

  • Classe Energetica: Non Comunicata
  • I.P.E.: 0

Indirizzo Caricamento...