logo mondocasa

Negozio

Ris.

  • in Affitto
  • Mq: 160

Descrizione

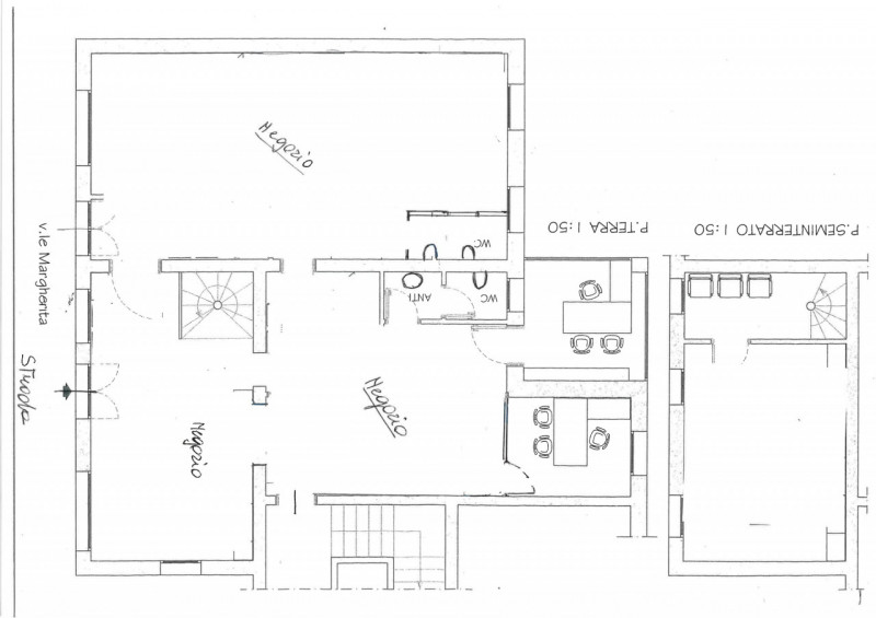
BORGO BERGA/VIALE MARGHERITA 113: in posizione strategica e dalla grande visibilità, proponiamo in locazione un ampio negozio vetrinato (ora frazionato in più vani) di 160 mq. C. E. N. D. Rif: U62 Bellieni Immobiliare S. R. L Unipersonale, Piazza G. it.

L'immobile è composto da un ingresso con due vetrine fronte strada, un secondo vano e due salette separate (a richiesta del conduttore); nella stanza accanto troviamo un grande spazio in open space con due ulteriori vetrine affacciate su Viale Margherita, antibagno e bagno. Al piano semi interrato c'è un vano di 30 mq da adibire a ripostiglio o deposito. E' ideale per attività che cercano una grande visibilità essendo ubicato vicino al complesso commerciale Borgo Berga. Sono disponibili compresi nel canone di locazione 4 posti auto con la possibilità di prenderne in locazione altri 4, per un totale di 8 posti auto. L'immobile è dotato di impianto di condizionamento a canalizzazione, di ricircolo dell'aria, mentre il riscaldamento è autonomo a radiatori. Le finiture interne sono discrete, con pavimenti in marmo 30x30, serramenti esterni di sicurezza, porte interne bianche. Matteotti n ° 20, Vicenza. 0444 322818 richieste@bellieni. com www. bellieni. com --- annuncio pubblicato con GESTIONALEIMMOBILIARE.

Dettagli

  • ID Annuncio: 49114252
  • Prezzo: Ris.
  • Superficie: 160 m²
  • Pubblicazione: 01/12/2025
  • Tipologia:
  • Contratto:

Informazioni aggiuntive

  • Arredamento: Non Specificato
  • Riscaldamento: Climatizzato
  • Cucina: Non Specificata
  • Condizioni: Non Specificate

Efficienza Energetica

  • Classe Energetica: Non Comunicata
  • I.P.E.: 0.00 kWh/m3anno

Indirizzo Caricamento...