logo mondocasa

Capannone

€ 1.200.000

  • in Vendita
  • Mq.: 1.200

Descrizione

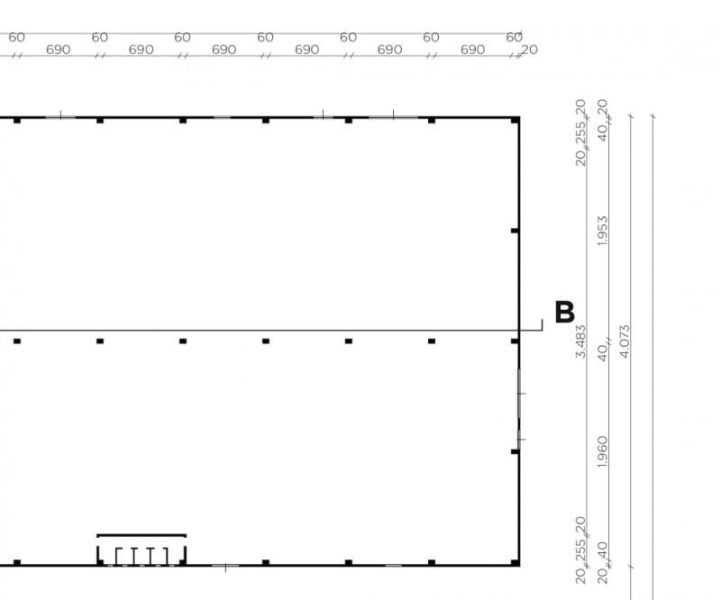
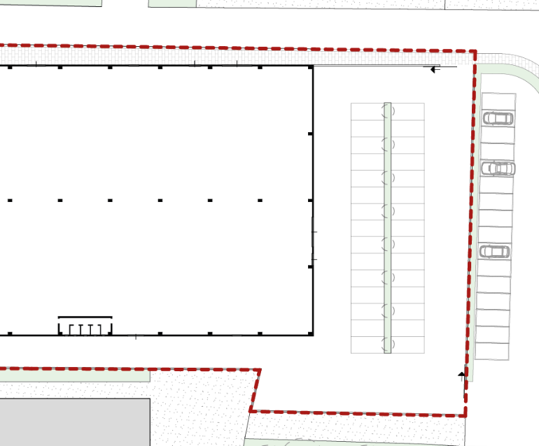
RIF: 051NM - CAMPONOGARA (VE) - PER INFO 0444/310220 Propongo in vendita un capannone di 1200 mq a Camponogara di Venezia - consegna a fine 2026 al grezzo avanzato - 5 metri di altezza - 750 mq di scoperto - possibilità di raddoppiare la metratura IL PREZZO E’ DA INTENDERSI AL NETTO DI IVA PER PRIVACY L’INDIRIZZO RIPORTATO SU MAPPA NON CORRISPONDE ALLA REALE UBICAZIONE DELL’IMMOBILE.

La presente agenzia immobiliare declina qualsiasi responsabilità in ordine alle informazioni riportate in questo annuncio in quanto le stesse sono da intendersi indicative. La scrivente non assume alcuna responsabilità in ordine all’attualità delle stesse, nonché ad eventuali omissioni o inesattezze. Pertanto le informazioni riportate nel presente annuncio non costituiscono vincolo contrattuale tra le parti. --- annuncio pubblicato con GESTIONALEIMMOBILIARE.it.

Dettagli

  • ID Annuncio: 49131081
  • Prezzo: € 1.200.000
  • Superficie: 1.200 m²
  • Pubblicazione: 22/09/2025
  • Tipologia:
  • Contratto:

Informazioni addizionali

  • Arredamento: Non Specificato
  • Riscaldamento: Non Specificato
  • Cucina: Non Specificata
  • Condizioni: Da Ristrutturare

Efficienza Energetica

  • Classe Energetica: NON SOGG. CERT.
  • I.P.E.: 0.00 kWh/m3anno

Indirizzo Caricamento...