logo mondocasa

Appartamento

€ 135.000

  • in Vendita
  • Locali: 2
  • Bagno: 1
  • Mq.: 105

Descrizione

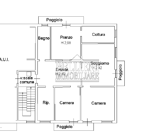
VIALE TRIESTE: in via residenziale vicina a tutti i servizi, proponiamo in vendita in piccola palazzina, un ampio appartamento bicamere. L'appartamento si trova all'ultimo piano di una palazzina ben abitata in una vietta interna e tranquilla. L'immobile si compone di: ampio ingresso, cucinotto separato con sala da pranzo e comodo poggiolo di servizio, salotto con ulteriore poggiolo, luminosa camera matrimoniale, seconda camera, un ampio ripostiglio utilizzabile come studiolo e un bagno finestrato.

Completa l'appartamento un garage al piano terra. L'appartamento si trova in un discreto stato di manutenzione: finestre in PVC con vetrocamera, zanzariere e tapparelle motorizzate, termoautomo, sistema di raffrescamento con split, pavimenti in marmo palladiana. Rif. B57 Cl.en. F Bellieni Immobiliare S.R.L Unipersonale, Piazza G. Matteotti n°20, Vicenza. 0444525262 richieste@bellieni.com www.bellieni.com --- annuncio pubblicato con GESTIONALEIMMOBILIARE.it.

Dettagli

  • ID Annuncio: 49145761
  • Prezzo: € 135.000
  • Superficie: 105 m²
  • Pubblicazione: 22/09/2025
  • Tipologia:
  • Locali: 2
  • Bagni: 1
  • Contratto:

Informazioni addizionali

  • Arredamento: Non Specificato
  • Riscaldamento: Climatizzato
  • Cucina: Cucina abitabile
  • Condizioni: Non Specificate

Efficienza Energetica

  • Classe Energetica:
  • I.P.E.: 232.11 kWh/m2anno

Indirizzo Caricamento...