logo mondocasa

Locale Comm.le

€ 3.200

  • in Affitto
  • Bagno: 1
  • Mq.: 500

Descrizione

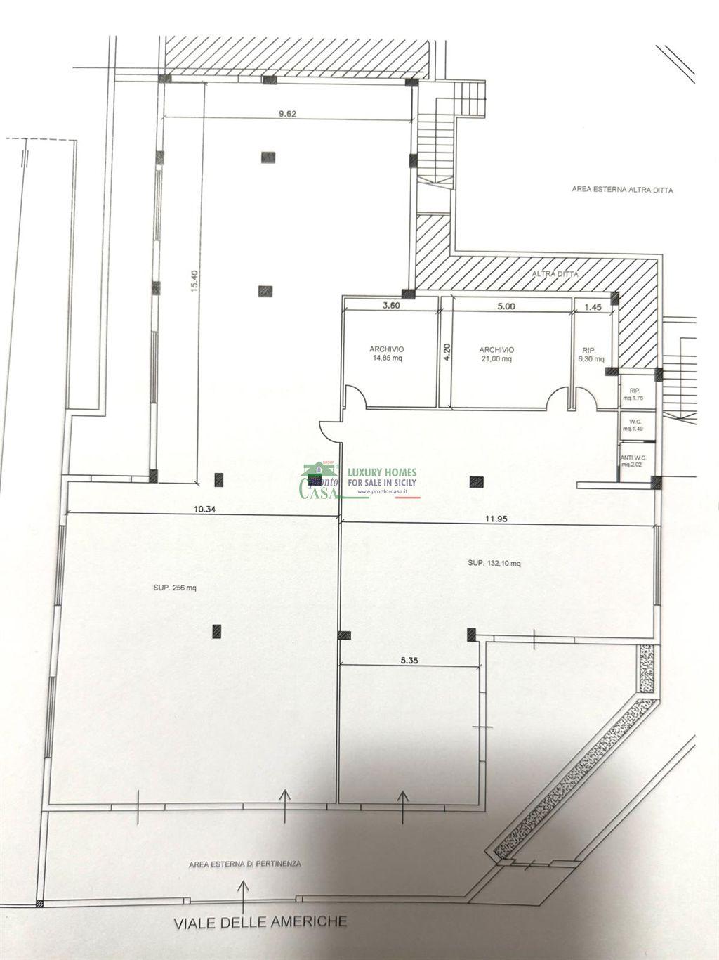
La Pronto Casa, propone in Affitto ampio e luminoso locale commerciale di circa 500 mq in Viale delle Americhe. L 'immobile, con piazzale antistante e tre grandi vetrate su strada principale, si sviluppa interamente al piano terra ed è composto da due spaziosi locali, due vani ad uso studio ed un servizio con relativo antibagno.

DOTAZIONI E PERTINENZE: - Riscaldamento ad aria centralizzato - Impianto di allarme. Per ulteriori informazioni rivolgersi alla Agenzia 1 di Ragusa al numero 0932 257603. Per tutti gli altri annunci collegarsi sul sito www.pronto-casa.it.

Dettagli

  • ID Annuncio: 49161730
  • Prezzo: € 3.200
  • Superficie: 500 m²
  • Pubblicazione: 11/07/2025
  • Tipologia:
  • Bagni: 1
  • Contratto:

Informazioni addizionali

  • Arredamento: Vuoto
  • Riscaldamento: Non Specificato
  • Cucina: Cucina non presente
  • Condizioni: Ottimo Stato

Efficienza Energetica

  • Classe Energetica: Non Comunicata
  • I.P.E.: 0

Indirizzo Caricamento...