logo mondocasa
Trentino Alto Adige - Provincia di Bolzano - Bolzano

Capannone

€ 6.000

  • in Affitto
  • Mq.: 1.200

Descrizione

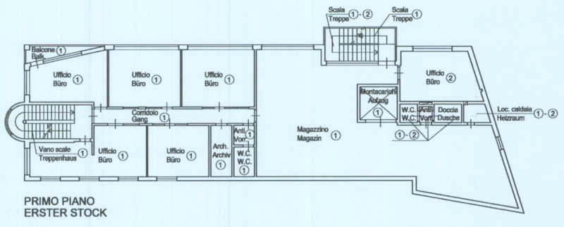
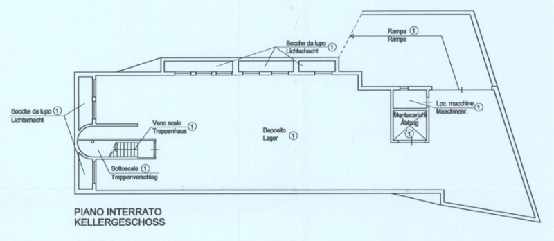
Nr.Rif: K091 Proponiamo in affitto un capannone industriale/commerciale completo, situato in Via Braille a Bolzano, ideale per attività produttive, logistiche o commerciali. L’immobile si sviluppa su 3 piani fuori terra e un piano interrato, tutti collegati con un pratico montacarichi, offrendo ampi spazi funzionali sia per magazzino che per uffici.

Al piano interrato, piano terra e al secondo piano sono presenti vaste aree dedicate al deposito e alla logistica, mentre il primo piano è ottimizzati per spazi ufficio. All’ingresso è disponibile un piazzale e un area accettazione. Caratteristiche principali: •3 piani fuori terra + 1 piano interrato •Ampi spazi magazzino •Spazi ufficio luminosi e funzionali •Piazzale privato all’ingresso •Subito disponibile Per informazioni e visite: 3470098729 --- annuncio pubblicato con GESTIONALEIMMOBILIARE.it.

Dettagli

  • ID Annuncio: 49185891
  • Prezzo: € 6.000
  • Superficie: 1.200 m²
  • Pubblicazione: 17/10/2025
  • Tipologia:
  • Contratto:

Informazioni addizionali

  • Arredamento: Non Specificato
  • Riscaldamento: Non Specificato
  • Cucina: Non Specificata
  • Condizioni: Buono Stato

Efficienza Energetica

  • Classe Energetica: Non Comunicata
  • I.P.E.: 0.00 kWh/m3anno

Indirizzo Caricamento...